Data Sheet

Tel. +48-14-610-19-40, fax: +48-14- 610-19-50, www.pulsar.pl, e- salesmail: @pulsar.pl
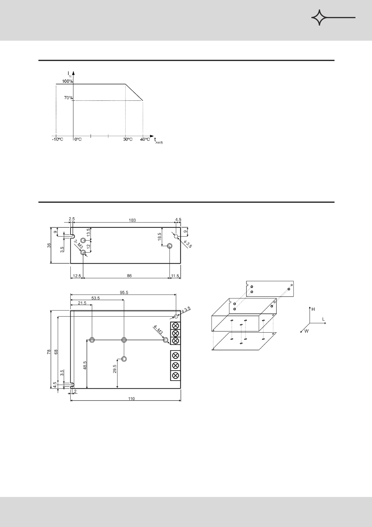
Maßeintragung und Befestigung der Speiseleitung PSB-251215
Temperaturcharakteristik
Diagramm 1.
Zulässiger Ausgangsstrom der Speiseleitung
je nach Umgebungstemperatur.
Pulsar
®
Impuls- und Pufferspeiseleitung zur Bebauung 13,8V DC, ohne MP Betriebskontrolle
Netzgerät aus der Serie PSB


