User Instructions

www.pulsar.pl EN54-5A17LCD RED POWER
10
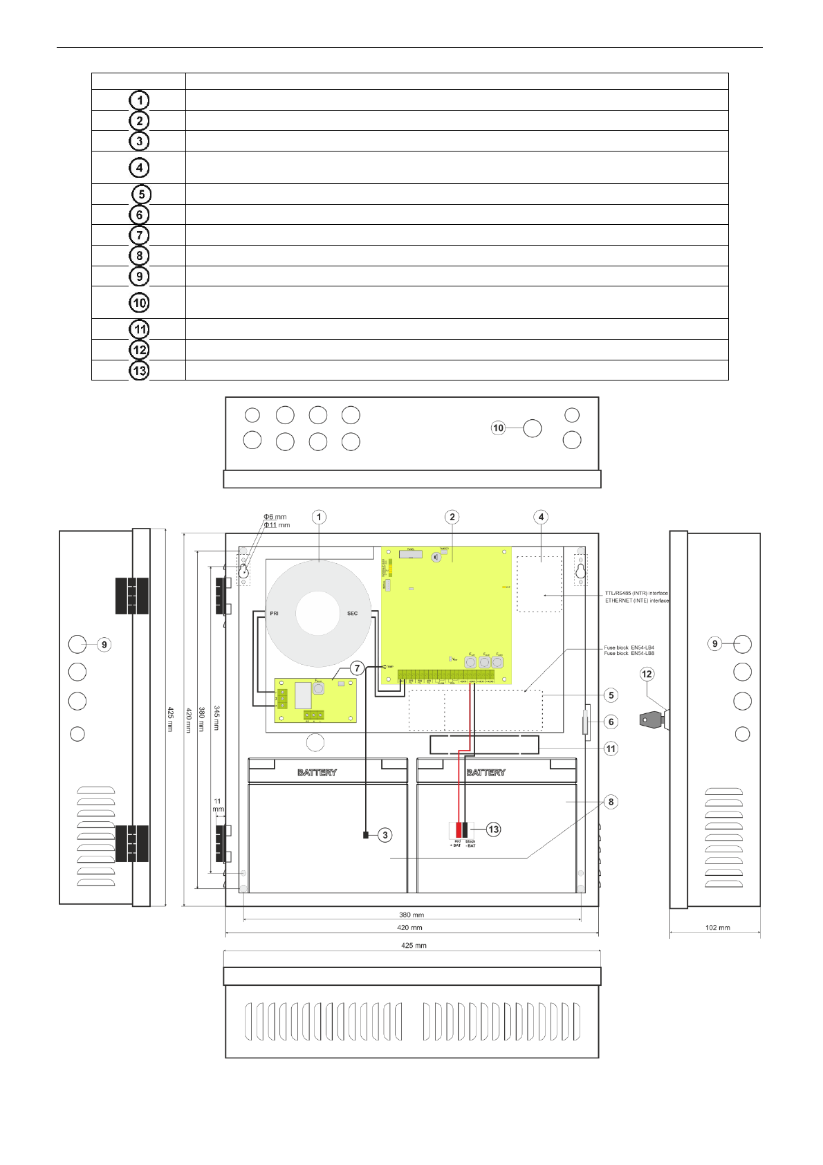
Πίνακας 3. Επιμέρους στοιχεία τροφοδοτικού (σχ. 4).
Στοιχείο Νο
Περιγραφή
Μετασχηματιστής απομόνωσης
Πλακέτα τροφοδοτικού (πιν. 1, σχ. 2)
Αισθητήρας ελέγχου θερμοκρασίας μπαταριών
Χώρος για τοποθέτηση επιπρόσθετης μονάδας:
INTR, INTE
Χώρος για τοποθέτηση μονάδας ασφαλειών EN54-LB4 ή EN54-LB8
TAMPER; μικροδιακόπτης (επαφές) προστασίας δολιοφθοράς (NC)
Μονάδα φίλτρου EMC (πιν. 2, σχ. 3)
Μπαταρίες 2x17 Ah
Πρεσαρισμένες θέσεις για εγκατάσταση στυπιοθλιπτών
Πρεσαρισμένες θέσεις για εγκατάσταση στυπιοθλίπτη (καλώδιο επικοινωνίας με το
interface
Πρεσαρισμένες θέσεις για εισαγωγή εντοιχιζόμενων καλωδιώσεων
Κλειδαριά
Ακροδέκτες μπαταρίας; θετικό: +BAT = κόκκινο, αρνητικό: - BAT = μαύρο
Σχ.4. Κάτοψη τροφοδοτικού.










