Operating instructions

www.pulsar.pl          EN54-3A28              RED POWER 
10
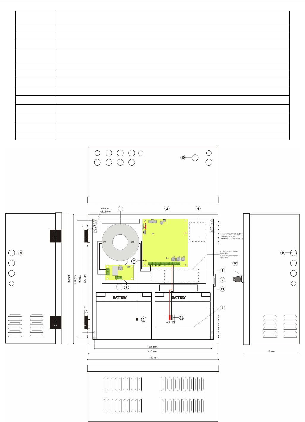
Table 3. Elements of the PSU (Fig. 4). 
Component 
No. 
Description 
[1] 
Isolation transformer 
[2] 
Printed Circuit Board (see Table 1, Fig. 2) 
[3] 
Battery temperature sensor. 
[4] 
Space to install an additional module: 
 “INTR”, “INTE”, “INTW” 
[5] 
Place to install the EN54-LB4 or EN54-LB8 fuse module 
[6]  TAMPER; microswitch (contacts) of antisabotage protection (NC) 
[7] 
EMC filter module (see Table 2, Fig. 3) 
[8] 
 2x28Ah batteries 
[9] 
Embossing for cable gland 
[10] 
Embossing for cable gland (WiFi antenna or cable communication interface) 
[11] 
Embossings for concealed wires 
[12] 
Lock 
[13] 
Battery connectors; positive: +BAT = red, negative: - BAT = black 
Fig.4. The view of the PSU. 










