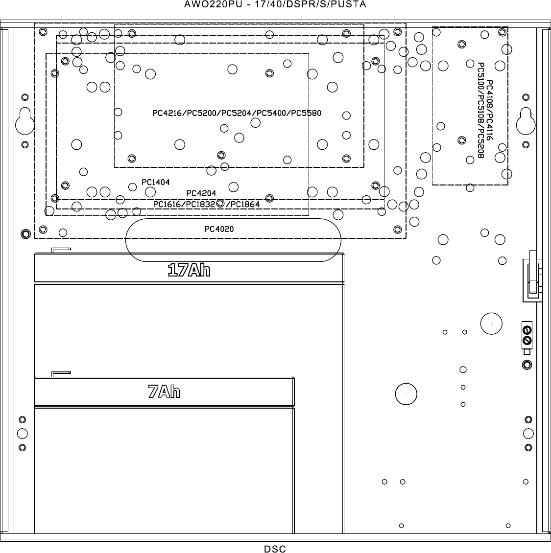
Installation of control panel DSC
Manuals
Brands
Pulsar Manuals
Metal enclosures
Casing 17/40/DSPR/S/PUSTA
1
1
Summary of content (1 pages)
PAGE 1