Operation Manual
Table Of Contents

DATOSTÉCNICOS
MarcaPROLINE
Tipodeelectro domésticoFRIGORÍFICO/CONGELADOR
Clasificaciónporestrellas
Volumenbrutototal121L
Volumendeconservacióndelfrigorífico89L
Volumendeconservacióndelcongelador29L
Capacidaddecongelación2.0kg/24h
Potenciamáxnominaldelaluz10W
Potencianominal85W
Corrientenominal0.48A
Claseclimática+RangodeTemperaturaAmbienteN(+16°Ca+32°C)
Claseenergética(1)A+
Consumoeléctrico(kWh/año)(2)176
Voltajedealimentación220-240V~,50Hz
Ruido[dB(A)re1pW]<42
Refrigerante/CantidadR600a/40g
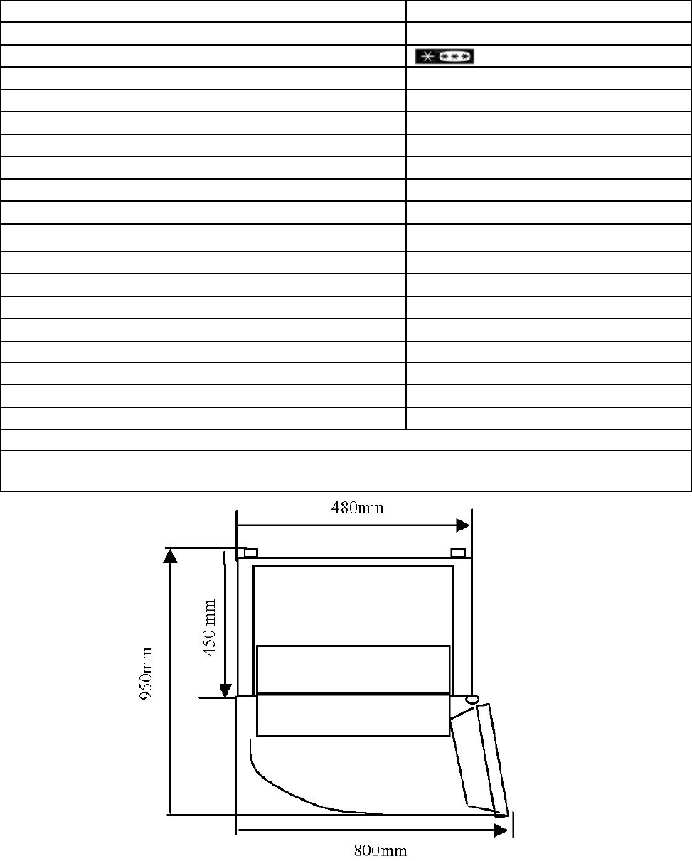
Dimensionesdelproducto(Ancho×Fondo×Alto)480×510×1150mm
GasaislanteCicl opentano
Pesoneto30kg
(1)Claseenergética:A+++…..D(A+++=económico…D=menoseconómico)
(2)elconsumoeléctricorealdependedelascondicionesdeusoylaubicacióndel
aparato.
Rogamosdisculpasporcualquierinconvenientegeneradoporpequeñasinconsistenciasen
estasinstrucciones,quepuedenproducirsecomoresultadodemejorasydesarrollodel
producto.
Darty Plc©UK:EC1N6TE 14/11/2013
Downloaded from www.vandenborre.be
16










