Installation Guide
Manuals
Brands
Progress Lighting Manuals
Flush Mount Lights
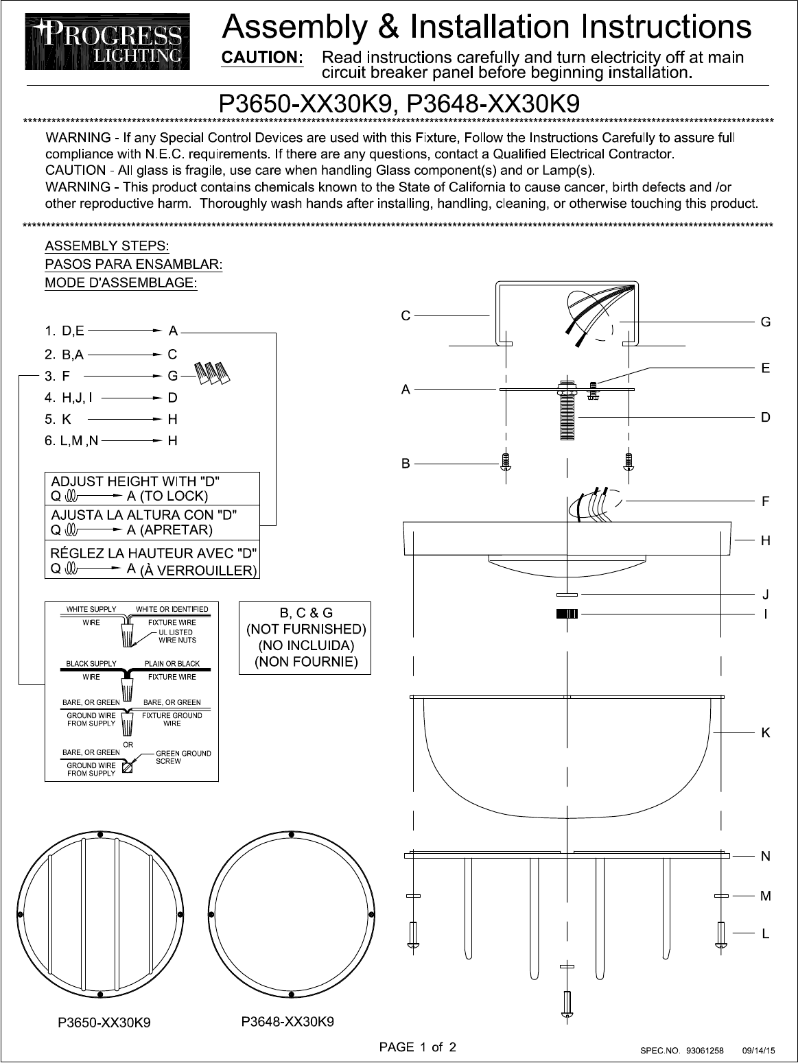
1-Light Black LED Bulkhead
1
2
1
2
Summary of content (2 pages)
PAGE 1
PAGE 2