OWNER'S OPERATION AND INSTALLATION MANUAL COMPACT VENT-FREE FIREPLACE EN250RYLB-O, EL250RYLB-O

7
NOTICE: This heater is
intended for use as supplemental
heat. Use this heater along with
your primary heating system. Do
not install this heater as your
primary heat source. If you have a
central heating system, you may
run system's circulating blower
while using heater. This will help cir-
culate the heat throughout the
house .
INSTALLATION
WARNING: A qualified service
person must install heater. Follow
all local codes.
WARNING: Never install the
heater:
in a bedroom or bathroom
in a recreational vehicle
where curtains, furniture, clothing,
or other flammable objects are
less than 36 inches from the
front, top, or sides of the heater
in high traffic areas
in windy or drafty areas
WARNING: Maintain the
minimum clearances. If you can,
provide greater clearances from
floor, ceiling, and adjoining side and
back walls.
CAUTION: This heater creates
warm air currents. These currents
move heat to wall surfaces next to
heater. Installing heater next to vinyl
or cloth wall coverings or operating
heater where impurities (such as
tobacco smoke, aromatic candles,
cleaning fluids, oil or kerosene
lamps, etc.) in the air exist,may dis-
color walls.
IMPORTANT: Vent-free heaters add
moisture to the air. Although this is
beneficial, installing heater in rooms
without enough ventilation air may
cause mildew. See Air for Combustion
and Ventilation, pages 5 through 6.
CHECK GAS TYPE
Use only the type of gas indicated on
the plate. If your gas supply can not
meet that requirement, do not install
heater. Call dealer where you bought
heater from for proper heater type.
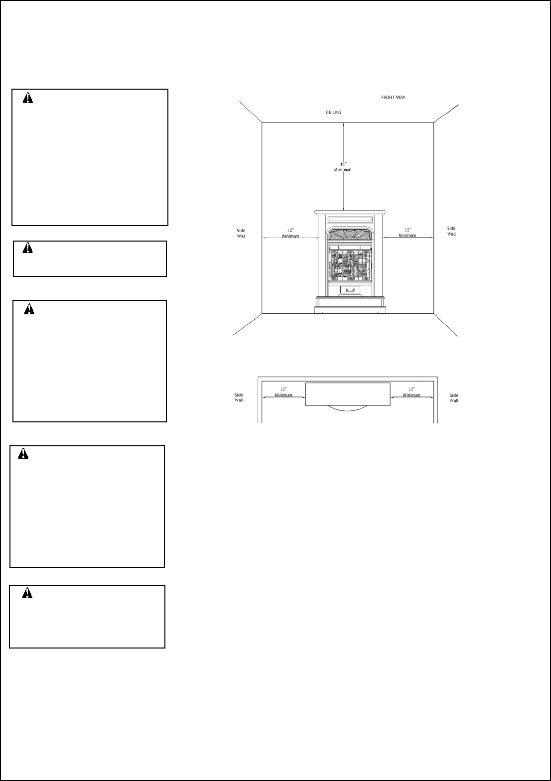
Figure 4 -Minimum Clearance to Wall
CLEARANCES TO COMBUSTIBLES
(Vent-Free Operation Only)
Carefully follow the instructions below.
This fireplace is a freestanding unit
designed to set directly on the floor.
IMPORTANT: You must maintain
minimum wall and ceiling clearances
during installation. The minimum
clearances are shown in Figure 4.
Measure from outermost point of fire-
place top.
Minimum Wall and Ceiling
Clearances
(see Figure 4)
A. Clearances from outermost point
of fireplace top to any combustible side
wall should not be less than 12 inches.
B. Clearances from the fireplace top
to the ceiling should not be less than
48 inches.










