OWNER'S OPERATION AND INSTALLATION MANUAL COMPACT VENT-FREE FIREPLACE EN250RYLB-O, EL250RYLB-O

13
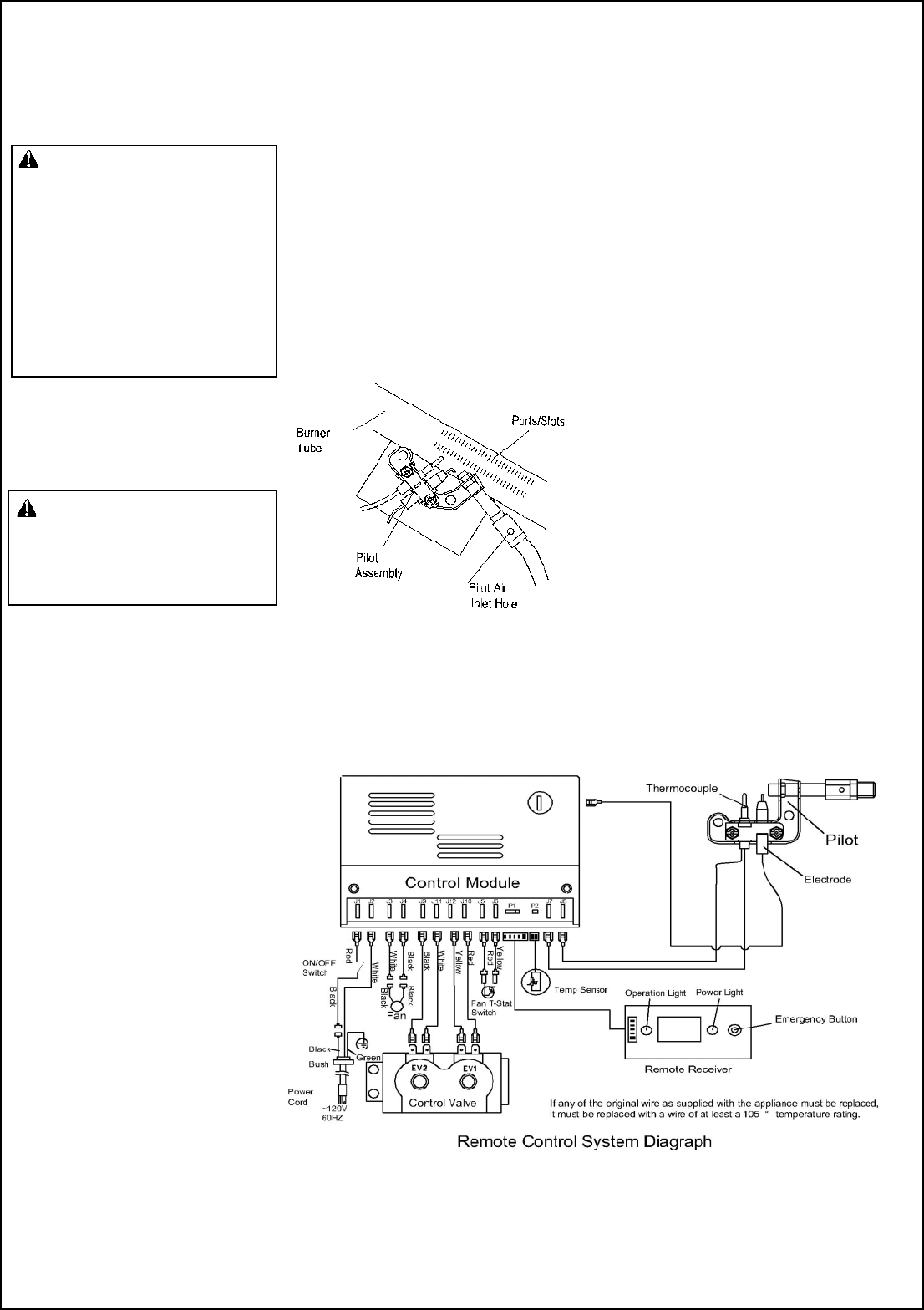
Clean the pilot assembly also. A
yellow tip on the pilot flame
indicates dust and dirt in the pilot
assembly. There is a small pilot air
inlet hole about two inches from
where the pilot flame comes out of
the pilot assembly (see Figure 24).
With the unit off, lightly blow air
through the air inlet hole. You may
blow through a drinking straw if
compressed air is not available.
Figure 24-Pilot Air Inlet Hole
CLEANING AND MAINTENANCE
Continued
CABINET
Air Passageways
Use a vacuum cleaner or pressurized
air to clean.
EXTERIOR
Use a soft cloth dampened with a
mild soap and water mixture. Wipe
the cabinet to remove dust.
LOGS
If you remove logs for cleaning,
refer to Installing Logs, page
21, to properly replace logs.
Replace log(s) if broken or chipped
(dime-sized or larger).
MAIN BURNER
Periodically inspect all burner flame
holes with the healer running. All
slotted burner flame holes should
be open with yellow flame present. All
round burner flame holes should be
open with a small blue flame
present. Some burner flame holes
may become blocked by debris or
rust, with no flame present. If so,
turn off heater and let cool. Either
remove blockage or replace burner.
Blocked burner flame holes will
create soot.
CAUTION: You must keep
control areas, burner, and
circulating air passageways of
heater clean. Inspect these
areas of heater before each
use. Have heater inspected
yearly by a qualified service person.
Heater may need more
frequent cleaning due to
excessive lint from carpeting,
bedding material, pet hair, etc.
CLEANING ODS/IGNITOR AND
BURNER
Clean with a vacuum cleaner.
CLEANING MAIN AIR INLET HOLE
WARNING
::
::
:
Failure to keep the
primary air opening of the burner
clean may result in sooting and
property damage.
We recommend that you clean the unit
every three months or after 2500 hours
of operation. We also recommend that
you keep the burner tube and pilot as-
sembly clean and free of dust and
dirt. To clean these parts we recom-
mend using compressed air no greater
than 30 PSI. You can use a vacuum
cleaner in the blow position. If
using compressed air in a can,
please follow the directions on the
can. If you don't follow directions
on the can, you could damage the
pilot assembly.
1. Shut off the unit, including the
pilot. Allow the unit to cool for
at least thirty minutes.
2. Inspect burner, pilot and
primary air inlet holes on
injector holder for dust and dirt
(see figure 21).
3. Blow air through the
ports/slots and holes in the
burner.
4. Check the injector holder
located at the end of the
burner tube again. Remove
any large particles of dust, dirt,
lint, or pet hair with a soft cloth
or vacuum cleaner nozzle.
5. Blow air into the primary air
holes on the injector holder.
6. In case any large clumps of
dust have been pushed
into the burner, repeat steps 3
and 4.










