User guide

Installation Instructions
Chevrolet S-10 Pickup
GMC S-15 & Sonoma Pickup
Isuzu Hombre
Part Numbers:
51063
44062
Equipment Required:
Wrenches: 3/4 Socket & Wrench
Drill Bits: 1/2”
Note: Fasteners typical both
sides
5
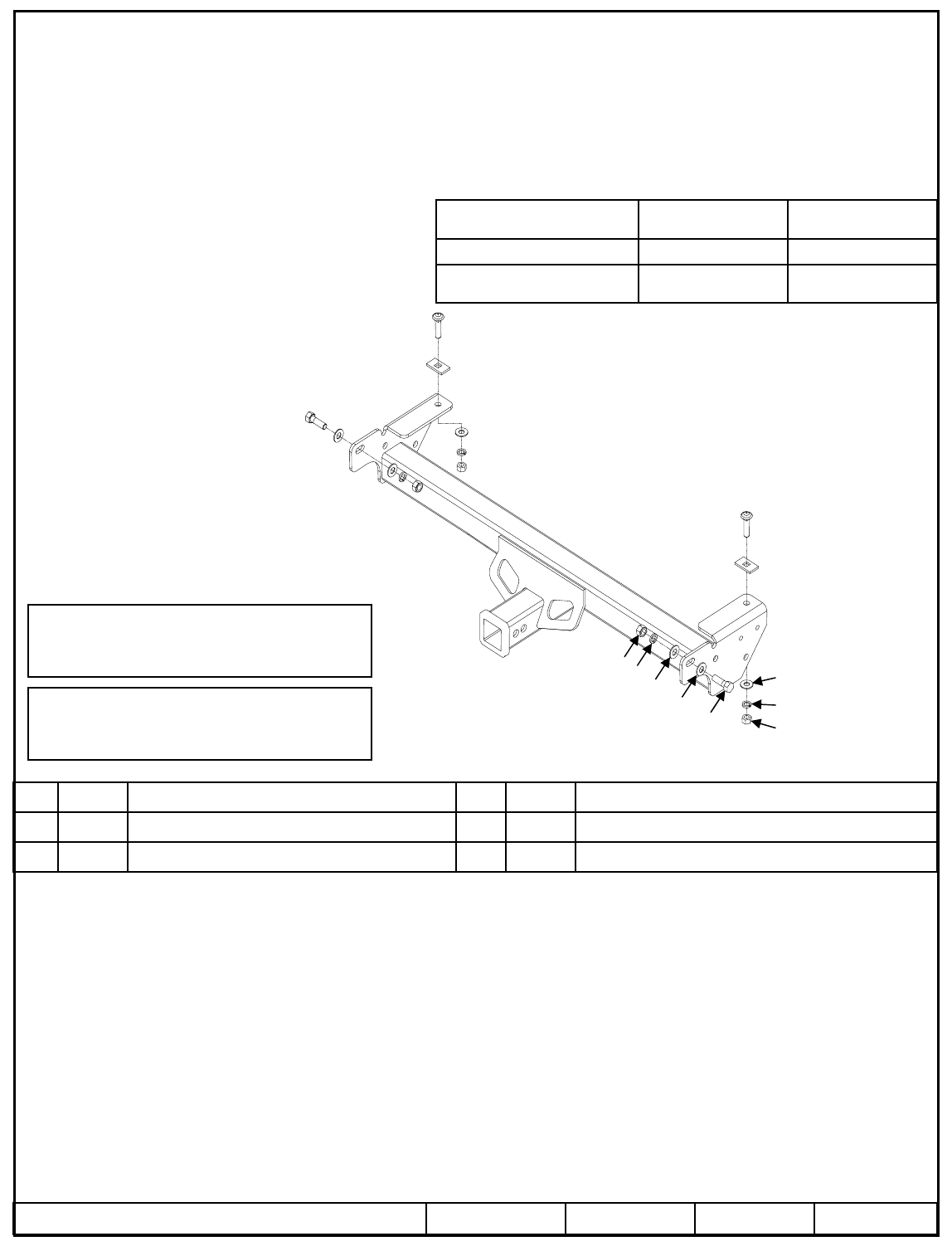
1. Lift the hitch up into place between the bumper brackets.
2. Insert a 1/2” carriage bolt with the block down through the large hole at the end of the frame and into the hole in the hitch bracket. Install a
1/2” flat washer, and 1/2” lock washer, and 1/2” nut on the bolt. See diagram above. Repeat for the other side.
3. Insert a 1/2” hex head bolt with a 1/2” flat washer through the bumper bracket and into the hitch bracket. Install a 1/2” flat washer, 1/2” lock
washer, and 1/2” nut on the bolt. See diagram above. Repeat for the other side. On some models the bumper brackets will have to be drilled.
Use the holes in the hitch brackets as a guide to drill 1/2” holes through the bumper brackets.
.
Rev. D6-27-0644062INSheet 1 of 1
z 2002, 2004, 2006 Cequent Towing Products
Bolt 1/2-13 X 1.50Qty. (2)
6
Flat Washer 1/2Qty. (6)
3
Hex Nut 1/2-13Qty. (4)
5
BlockQty. (2)
2
Lock Washer 1/2Qty. (4)
4
Carriage Bolt 1/2-13 X 2.00Qty. (2)
1
Tighten all 1/2 fasteners with torque wrench to 70 Lb.-Ft. (95 N*M)
Note: check hitch frequently, making sure all fasteners and ball are properly tightened. If hitch is removed, plug all holes in trunk pan or other body panels to
prevent entry of water and exhaust fumes. A hitch or ball which has been damaged should be removed and replaced. Observe safety precautions when working
beneath a vehicle and wear eye protection. Do not cut access or attachment holes with a torch.
This product complies with safety specifications and requirements for connecting devices and towing systems of the state of New York, V.E.S.C. Regulation V-5
and SAE J684.
Fastener Kit: 44413
Do Not Exceed Lower of Towing Vehicle
Manufacturer’s Rating or
350 (159 Kg)3500 (1589 Kg)
Weight Carrying
Ball Mount
500 (227 Kg)5000 (2270 Kg)
Weight Distributing
Max Tongue
WT (LB)
Max Gross
Trailer WT (LB)
Hitch type
Wiring Access Location: PU3
Warning: Do Not lubricate threads, bolt failure
may occur due to over tightening.
Warning: Do Not drill or weld to this hitch.
Important notes
Use only Towing Products supplied or approved
bolts, locknuts, and washers to install this hitch.
4
3
2
1
4
3
6
3
5
SERIES 51®
Form: F205 Rev A 5-6-05

