User manual

6
Gerätebeschreibung
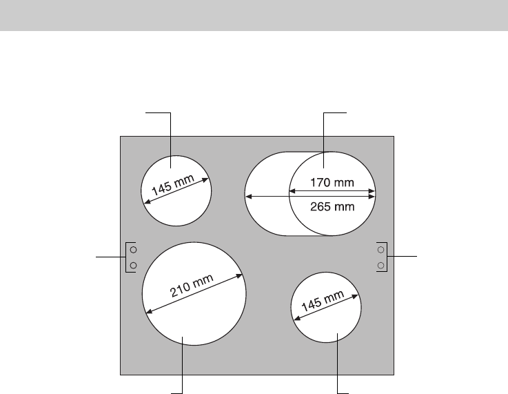
Ausstattung Kochfeld
Bräterzone
Bei der Bräterzone kann die Heizfläche
der Größe des Kochgeschirrs ange-
passt werden.
Restwärmeanzeige
Ihr Glaskeramikkochfeld ist mit einer
Restwärmeanzeige ausgestattet; jeder
Kochzone ist eine Kontrolllampe zuge-
ordnet. Diese leuchtet auf, sobald die
entsprechende Kochzone heiß ist und
warnt vor unbedachter Berührung.
1 Achtung! Solange die Restwär-
meanzeige leuchtet, besteht Verbren-
nungsgefahr.
Auch nach dem Ausschalten der Koch-
zone erlischt die Restwärmeanzeige
erst, wenn die Kochzone abgekühlt ist.
2 Sie können die Restwärme zum
Schmelzen und Warmhalten von Spei-
sen benutzen.
Einkreis-Kochzone
Einkreis-Kochzone
Einkreis-Kochzone
Bräterzone
Restwärme-
anzeigen
Restwärme-
anzeigen










