User manual

8
Aufstellen
Sicherheitshinweise
• Ein beschädigtes Gerät nicht anschließen.
Besonders auf den einwandfreien Zustand der
Netzanschlussleitung achten!
• Beim T ransport, beim Aufstellen, beim
Verschieben, bei der Handhabung und bei der
Reinigung des Gerätes ist darauf zu achten, dass
keine Teile des Kältemittelkreislaufes beschädigt
werden. Die Netzanschlussleitung darf nicht
eingeklemmt oder geknickt werden.
• Vielfachstecker , Kupplungen und
V erlängerungskabel dürfen für den elektrischen
Anschluss nicht verwendet werden. B ra ndgefa hr durch
Übe rhitz ung.
• Die Steckdose zum Anschluss des Gerätes muss
vorschriftsmäßig installiert sein. Nur dann ist im
Schadensfall ein Schutz vor elektrischem Schlag
gewährleistet. Sie sollte so gesetzt sein, dass ein
Ziehen des Gerätesteckers möglich ist.
• Die Hinweise zur Entlüftung bzw. Belüftung des
Gerätes im Abschnitt "Aufstellen" sind zu
berücksichtigen.
• Das Gerät ist schwer . Scharfe Metallkanten am
Gerät hinten und unten stellen ein Verletzungsrisiko
dar. Beim Aufstellen oder Verschieben sind Schutz-
handschuhe zu tragen.
• Der Ablauf für Tauwasser mündet in den
Auffangbehälter über dem Kompressor. Dieser
Behälter darf nicht entfernt werden. Brandgefahr!
Aufstellort
Türanschlagwechsel
Bevor das Gerät endgültig aufgestellt wird, sollte die
richtige Seite des Türanschlages überprüft werden.
Bei Bedarf ist nach dem Abschnitt "Türanschlag-
wechsel" zu verfahren.
Gesamtrau mbedarf
Erforderlicher Gesamtraumbedarf bei geöffneter Tür .
Gerätebreite: 65 cm
Gerätetiefe: 117 cm
Abstände
Direktes Anstellen an Heizkörper oder sonstige
Wärmequellen vermeiden. Zu Elektroherden 3 cm, zu
Öl- und Kohlenherden 30 cm Mindestabstand
einhalten. Bei Aufstellung neben anderen Gefrier- und
Kühlgeräten ist zu Vermeidung von Kondens-
wasserbildung ein Abstand von 2 cm notwendig.
Wandabstand
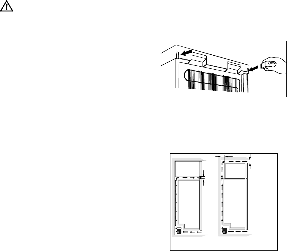
Im Beip ack sind zwei Wandabstandstücke enthalten,
die in die vorgesehenen Öffnungen in der Rückwand
mit Druck einzusetzen sind.
Lüftungsquerschnitte
Um aus Sicherheitsgründen eine ausreichende
Belüftung des Gerätes zu erzielen, müssen die
Angaben des erforderlichen Lüftungsquerschnittes
eingehalten werden.
50mm
40 mm
40 mm
Bei St andgeräten ist Zuluftquerschnitt
durch den Sockel vorgegeben.
Klimaklassen
Das Gerät sollte an einem Ort stehen, dessen
Umgebungstemperatur der Klimaklasse entspricht, für
die das Gerät ausgelegt ist. (Angabe auf dem
Typenschild)
Klimaklasse Umgebungstemperatur
SN von +10°C bis +32°C
N von +16°C bis +32°C
ST von +18°C bis +38°C
T von +18°C bis +43°C
Die Aufstellung in einem Raum, der für längere Zeit
über der Temperatur der angegebenen Klimaklasse
liegt, sollte vermieden werden.
Wartezeit
Zur wartungsfreien Dauerschmierung befindet sich in
der Kapsel des Motorkompressors Öl. Durch
Schräglage beim T ransport kann dieses Öl in das
geschlossene Rohrsystem gelangen. Es läuft selbst
wieder in die Kapsel zurück, wenn mit dem Einschalten
des Gerätes ca.2 Stunde gewartet wird.










