User manual

11
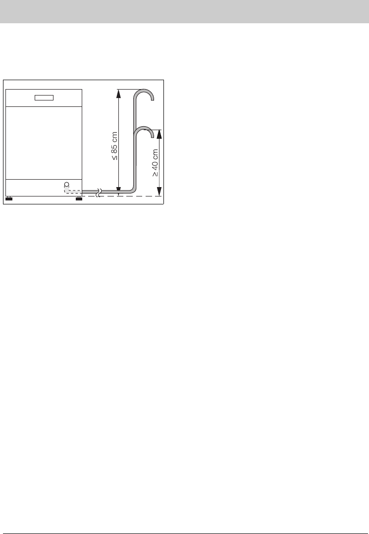
Anschluss des Ablaufschlauches:
– maximal zulässige Höhe: 1 Meter.
– minimal erforderliche Höhe: 40 cm
über der Geräteunterkante.
Maximale Schlauchlänge bei Verwen-
dung von Verlängerungsschläuchen
Bei einer evtl. notwendigen Schlauch-
verlängerung muss ein gleichartiger
Schlauch verwendet werden (erhältlich
beim Kundendienst).
Verlängerungsschläuche dürfen höch-
stens 4 Meter waagrecht verlegt sein
und die maximal zulässige Höhe für den
Anschluss des Ablaufschlauches be-
trägt dann 85 cm.
Verlegen der Schläuche
Wasserzu- und -ablaufschlauch sind
weitgehend knickfrei zu verlegen.
Überzeugen Sie sich davon, dass auch
beim Einschieben des Spülers an sei-
nen endgültigen Platz, die Schläuche
nicht geknickt oder gequetscht werden
und nach den Seiten im Sockelrück-
sprung verlegt sind.
Besondere Vorschriften des örtli-
chen Wasserwerkes sind genaue-
stens zu beachten.
Elektrischer Anschluss
Der Anschluss darf nur über eine vor-
schriftsmäßig installierte Schutzkontakt-
Steckdose an 220-240 V (50 Hz) erfol-
gen.
Der Anschlusswert beträgt ca. 2200 W.
Erforderliche Absicherung: 10 A - LS-L-
Schalter.
Das Gerät entspricht den VDE Vor-
schriften.
Besondere Vorschriften des örtli-
chen Elektrizitätswerkes sind ge-
nauestens zu beachten.
Wichtig! Das Stromanschlusskabel
muss nach Aufstellung des Gerätes
leicht zugänglich sein.










