User manual

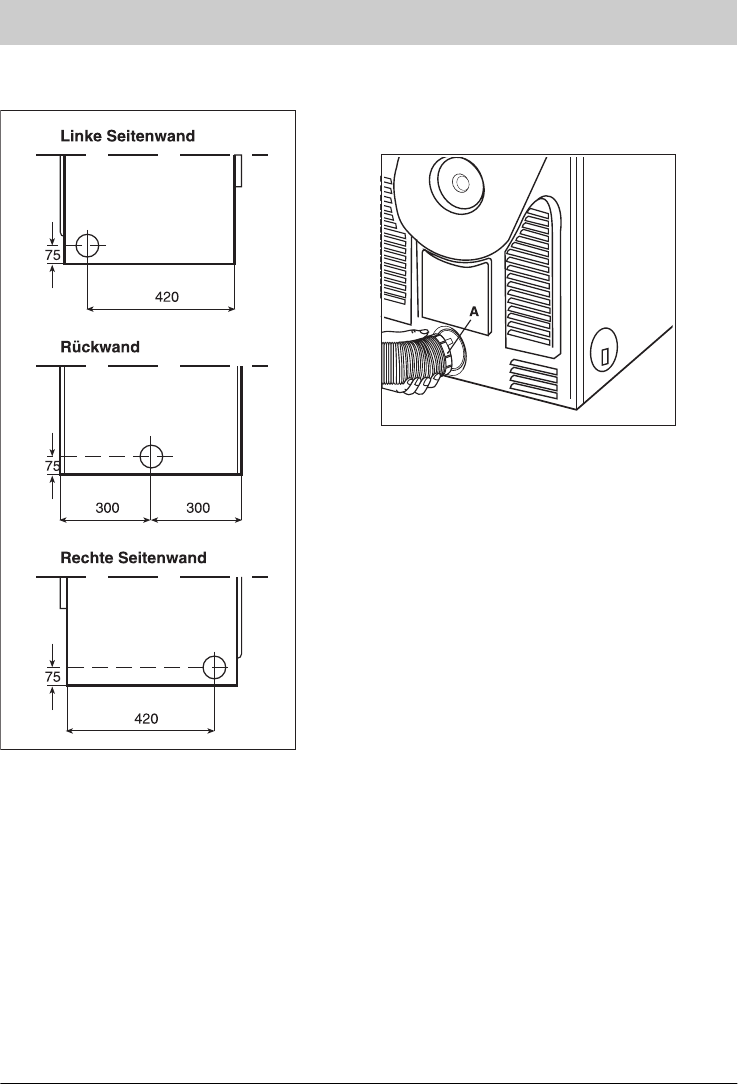
Abluftanschluss
Eine Abluftführung kann an der Rückwand
oder an einer der beiden Seitenwände an-
geschlossen werden.
Die Abluftführung soll grundsätzlich auf
dem kürzesten Weg verlegt werden. Bö-
gen, vor allem eng geführte, sollten mög-
lichst vermieden werden. Wir empfehlen
wegen der einfachen Verlegungsmöglich-
keit, den dem Gerät beiliegenden Abluft-
schlauch zu verwenden.
Schlauch mit dem Anschlussadapter “A”
in die gewünschte Abluftöffnung stecken.
Der Anschlussadapter befindet sich in der
Abluftöffnung auf der Rückseite des Ge-
räts.
Darauf achten, dass die beiden nicht ver-
wendeten Öffnungen durch die mitgelie-
ferten Deckel verschlossen werden. Die
Deckel können durch Herausziehen ent-
fernt (evt. mit Hilfe eines Schraubendre-
hers) werden.
Betrieb ohne Abluftführung
Der Aufstellungsraum muss während des
Trockenvorganges gut belüftet werden.
Die Abluft kann dann ungehindert in den
Raum austreten, wenn bei der benutzten
Abluftöffnung ein Mindestabstand von 30
cm zur Wand oder zum nächsten Gegen-
stand eingehalten wird. Der Raum muss
von Flusen frei gehalten werden.
Wenn man die Möglichkeit hat, das Gerät
so aufzustellen, dass die Luft an mehreren
Seiten frei ausblasen kann, ist es auch
möglich, mehrere Abluftöffnungen zu be-
nutzen. Falls das Gerät mit der Rückwand
gegen eine Wand steht, darf die hintere
Abluftöffnung nicht benutzt werden.
Die ungenutzten Abluftöffnungen können
durch die mitgelieferten Abschlussdeckel
.
47










