User manual

11
Wasserablauf
Ablaufschlauch
Der Ablaufschlauch wird zweckmäßi-
gerweise fest installiert. Die Abflusshö-
he muss zwischen 40 und 100 cm
liegen. Genügender Abflussquerschnitt
muss gewährleistet sein. Für den Si-
phonanschluss besitzt der Ablauf-
schlauch ein Gummiformteil.
Wird der Ablaufschlauch am Siphon
angeschlossen, so muss die Verbin-
dung mit einer Schlauchschelle gesi-
chert werden.
Bei Standgeräten, die nicht am Siphon
angeschlossen werden, kann der Ab-
laufschlauch mit dem beiliegenden
Krümmer in ein Spülbecken eingehängt
werden.
• Krümmer auf den Ablaufschlauch
stecken.
• Ablaufschlauch gegen Abrutschen
vom Spülbeckenrand sichern.
Schnur durch das Loch des Schlauch-
krümmers ziehen und an der Wand oder
am Wasserhahn befestigen.
Achtung: Der Ablaufschlauch darf nicht
geknickt, gequetscht oder in sich ver-
schlungen sein. Achten Sie auf sorgfälti-
ge Verlegung.
Schlauchlänge
Falls der Wasserzulaufschlauch/Was-
serablaufschlauch nicht lang genug ist,
dürfen nur geeignete Verlängerungs-
schläuche verwendet werden.
Diese sind als Set beim Kundendienst
erhältlich unter der Ersatzteilnummer
ET.-Nr. 1967900.
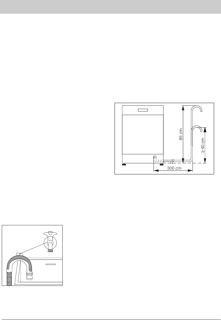
Bei Verlängerungsschläuchen, die
höchstens 3 Meter waagerecht verlegt
sein dürfen, beträgt die maximal zuläs-
sige Abpumphöhe 85 cm.
Verlegen der Schläuche
Wasserzu- und -ablaufschlauch sind
weitgehend knickfrei zu verlegen.
Überzeugen Sie sich davon, dass auch
beim Einschieben des Spülers an sei-
nen endgültigen Platz, die Schläuche
nicht geknickt oder gequetscht werden
und nach den Seiten im Sockelrück-
sprung verlegt sind.
Besondere Vorschriften des örtli-
chen Wasserwerkes sind genaue-
stens zu beachten.










