User manual

7
Wichtige Hinweise
Fachbegriffe
Kompressor
Der Kompressor sieht aus wie eine kleine Tonne. Er
wird von einem eingebauten Elektromotor angetrieben
und ist hinten im Sockelbereich des Gerätes
untergebracht.
Aufgabe des Kompressors ist es, damp f förmiges
Kältemittel aus dem Verdampfer abzuziehen, zu
verdichten und zum Verflüssiger weiterzuleiten.
Klimaklasse
Das Gerät kann nur in einem bestimmten
Umgebungstemperaturbereich einwandfrei funk-
ti onier en. Dieser zulässige Umgebungstemperatur-
bereich wird durch die Klimaklasse gekennzeichnet.
Aufstellen
Sicherheitshinweise
• Ein beschädigtes Gerät nicht anschliessen.
Besonders auf den einwandfreien Zustand der
Netzanschlussleitung achten!
• Beim T ransport, beim Aufstellen, beim
Verschieben, bei der Handhabung und bei der
Reinigung des Gerätes ist darauf zu achten, dass
keine Teile des Kältemittelkreislaufes beschädigt
werden. Die Netzanschlussleitung darf nicht
eingeklemmt oder geknickt werden.
• Die Steckdose zum Anschluss des Gerätes muss
vorschriftsmässig installiert sein. Nur dann ist im
Schadensfall ein Schutz vor elektrischem Schlag
gewährleistet.
• Die Steckdose sollte so gesetzt sein, dass ein
Ziehen des Netzsteckers möglich ist.
• Die Hinweise zur Entlüftung bzw . Belüftung des
Gerätes im Abschnitt "Aufstellen" sind zu
berücksichtigen.
• Das Gerät ist schwer. Scharfe Metallkanten am
Gerät hinten und unten stellen ein V erletzungsrisiko
dar. Beim Aufstellen oder Verschieben sind Schutz-
handschuhe zu tragen.
Aufstellort
Türanschlagwechsel
Bevor das Gerät endgültig aufgestellt wird, sollte die
richtige Seite des Türanschlages überprüft werden.
Bei Bedarf ist nach dem Abschnitt "Türanschlag-
wechsel" zu verfahren.
Gesamtraumbedarf
Erforderlicher Gesamtraumbedarf bei geöffneter Tür.
Gerätebreite: 65 cm
Gerätetiefe: 117cm
Abstände
Direktes Anstellen an Heizkörper oder sonstige
Wärmequellen vermeiden. Zu Elektroherden 3 cm, zu
Öl- und Kohlenherden 30 cm Mindestabstand
einhalten. Bei Aufstellung neben anderen Gefrier- und
Kühlgeräten ist zu Vermeidung von Kondens-
wasserbildung ein Abstand von 2 cm notwendig.
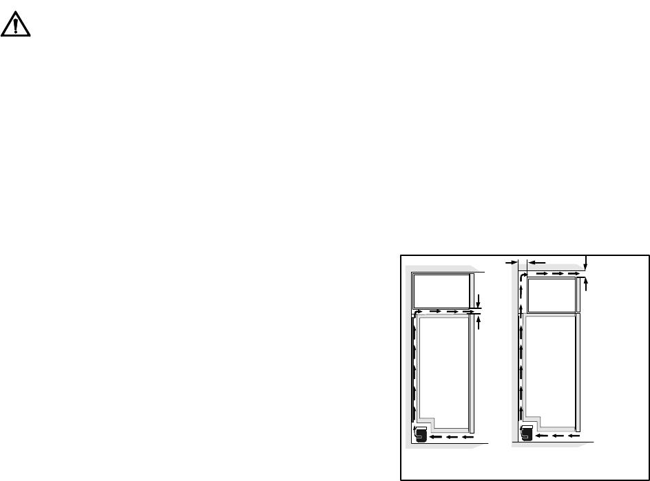
Lüftungsquerschnitte
Um aus Sicherheitsgründen eine ausreichende
Belüftung des Gerätes zu erzielen, müssen die
Angaben des erforderlichen Lüftungsquerschnittes
eingehalten werden.
50mm
40 mm
40 mm
Bei St andgeräten ist Zuluftquerschnitt
durch den Sockel vorgegeben.
Klimaklassen
Das Gerät sollte an einem Ort stehen, dessen
Umgebungstemperatur der Klimaklasse entspricht, für
die das Gerät ausgelegt ist. (Angabe auf dem
Typenschild)
Klimaklasse Umgebungstemperatur
SN von +10°C bis +32°C
N von +16°C bis +32°C
ST von +18°C bis +38°C
T von +18°C bis +43°C
Die Austellung in einem Raum, der für längere Zeit
über der Temperatur der angegebenen Klimaklasse
liegt, sollte vermieden werden (ein optimaler
Aufstellungsort für Gefriergeräte ist der Keller).










