Instructions / Assembly

U 10530
26950 San Bernardino Ave., Redlands, CA 92374
U 10530-INS
Single Cylinder Deadbolt Lock
Cerradura con seguro - Cilindro solo
Serrure à pêne cylindre simple
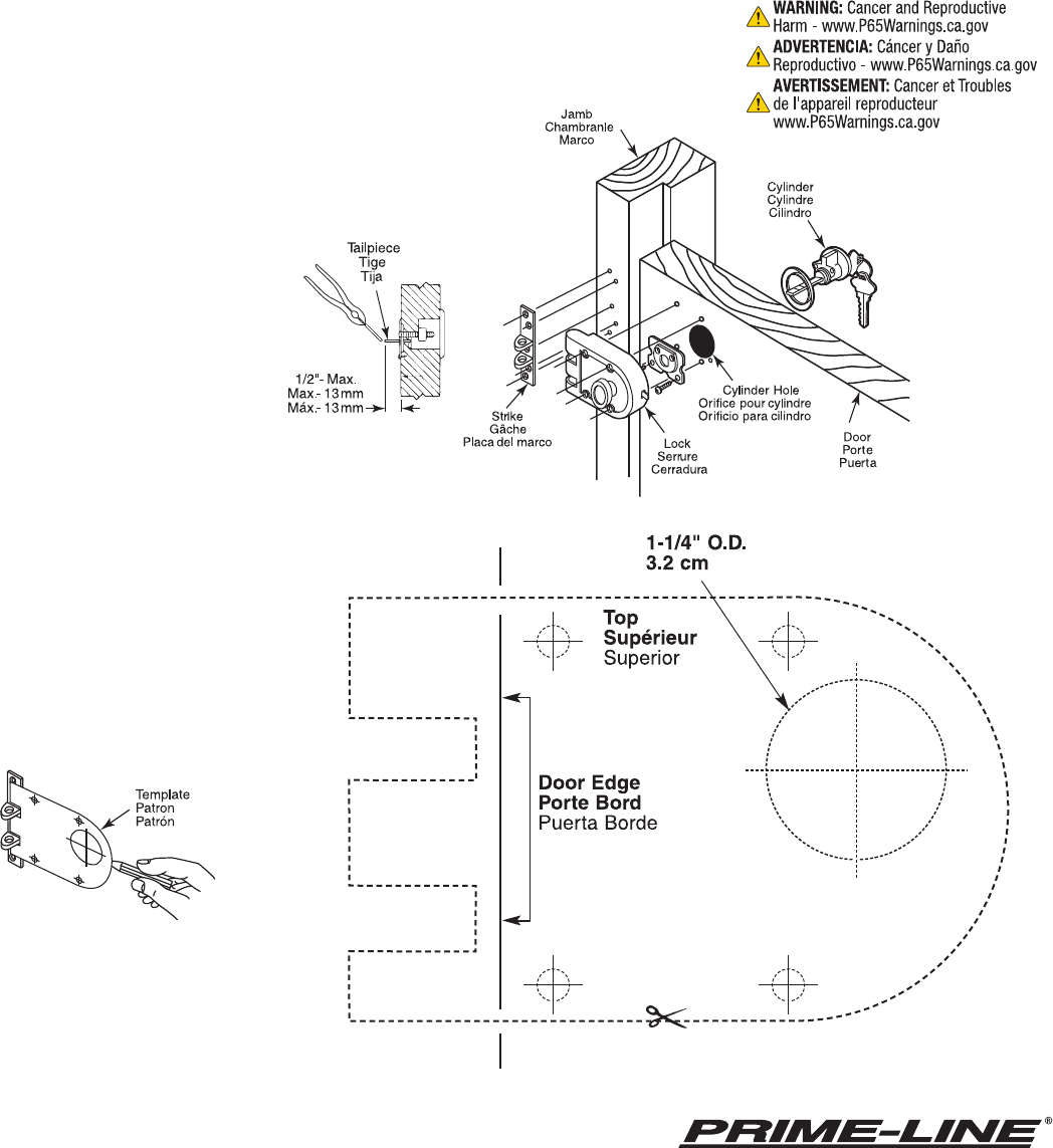
NOTE: Installation drawings are typical for this style of
replacement part. They may not show a part identical to the
one you are installing.
NOTA: Los dibujos para la instalación son genéricos para
repuestos de este tipo; por lo que podrían no mostrar una
pieza idéntica a la que usted esté instalando.
REMARQUE : Les dessins d'installation sont typiques pour ce
style de pièce de rechange. Ils pourraient ne pas illustrer
une pièce identique à celle que vous installez.
©2018 Prime-Line Products
Installation instructions:
Install in desired location as illustrated. Drill
3/32" holes for the 3/4" strike screws and
the longer lock mounting screws. When
drilling cylinder hole, drill small pilot hole
through the door and then drill 1-1/4" hole
half way through door from each side to
reduce splintering.
Instructions d'installation:
Installez la serrure à l'endroit désiré, tel
qu'illustré. Percez des orifices de 3/32"
pour les vis de 19 mm de la gâche et pour
les vis plus longues servant au montage de
la serrure. Lors du perçage de l'orifice pour
le cylindre, percez un petit orifice pilote et
par la suite, percez un orifice de 1-1/4" à
moitié chemin à travers chaque côté de la
porte, pour réduire de fendillement du bois.
Instrucciones para la instalación:
Coloque la cerradura en el lugar deseado,
como se muestra. Taladre orificios de 3/32"
para los tornillos de 19 mm utilizados sobre
la placa para el marco y para los tornillos
más largos, utilizados para el montaje de la
cerradura. Para taladrar el orificio del
cilindro, haga un pequeño orificio piloto y
después taladre un orifico de 1-1/4" en la
mitad, a través de cada uno de los lados de
la puerta, para reducir las
resquebrajaduras de la madera.
For 1-3/8" to 2-3/8" Thick Doors
Para puertas de 3.5 cm a 6 cm de espesor
Pour les portes d’une épaisseur de 3.5 cm à 6 cm
U 10530-INS_U 10530-INS 3/22/2018 7:35 AM Page 1