Owner manual

19
Manual No. 4111-0029
November 2009
May 2012
INSTALLATION
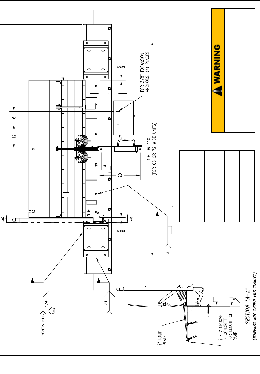
NOTE DESCRIPTION
1
Top of base plate and bumper
cover plate to be flush with top of
ramp plate.
2
Apply continuous bevel weld across
both bumpers and length of base
plate.
3
To figure ramp plate length, need
12” ramp for every 1-1/2” of rise
to ramp.
4
To install formed angle, see formed
angle installation instructions.
Securely block or support ramp and lip when in
vertical positions. Lack of proper bracing can result
in ramp dropping during adjustment or installation
causing personal injury or damage to unit.
2X










