Owner manual

17
Manual No. 4111-0029
November 2009
May 2012
ground in front of lever, with the unit raised and
secured in the maintenance position, loosen jam
nut on the underside of the linkage pin. To start
allow about 3/4” to 1” of threads between top of
jam nut and linkage pin. Using an open faced
wrench, hold locknut on inside of spring while
tightening threaded bolt until washer on top side
of spring closes up tight to ram nut. Test operation
of unit. Further adjust spring tension if needed
by advancing jam nut toward linkage pin and
tightening threaded rod. After desired operation
is achieved, tighten jam nut to outer washer on
spring. Springs must be adjusted alternately to
have equal spring tension.
18. Before install is complete, installer must make
a final operation check of dock leveler to verify
all phases of install are correct. Installer must
complete, sign and return the Installation Checklist
up on completion. Reference page 24
INSTALLATION
Securely block or support ramp and lip when in
vertical positions. Lack of proper bracing can result
in ramp dropping during adjustment or installation
causing personal injury or damage to unit.
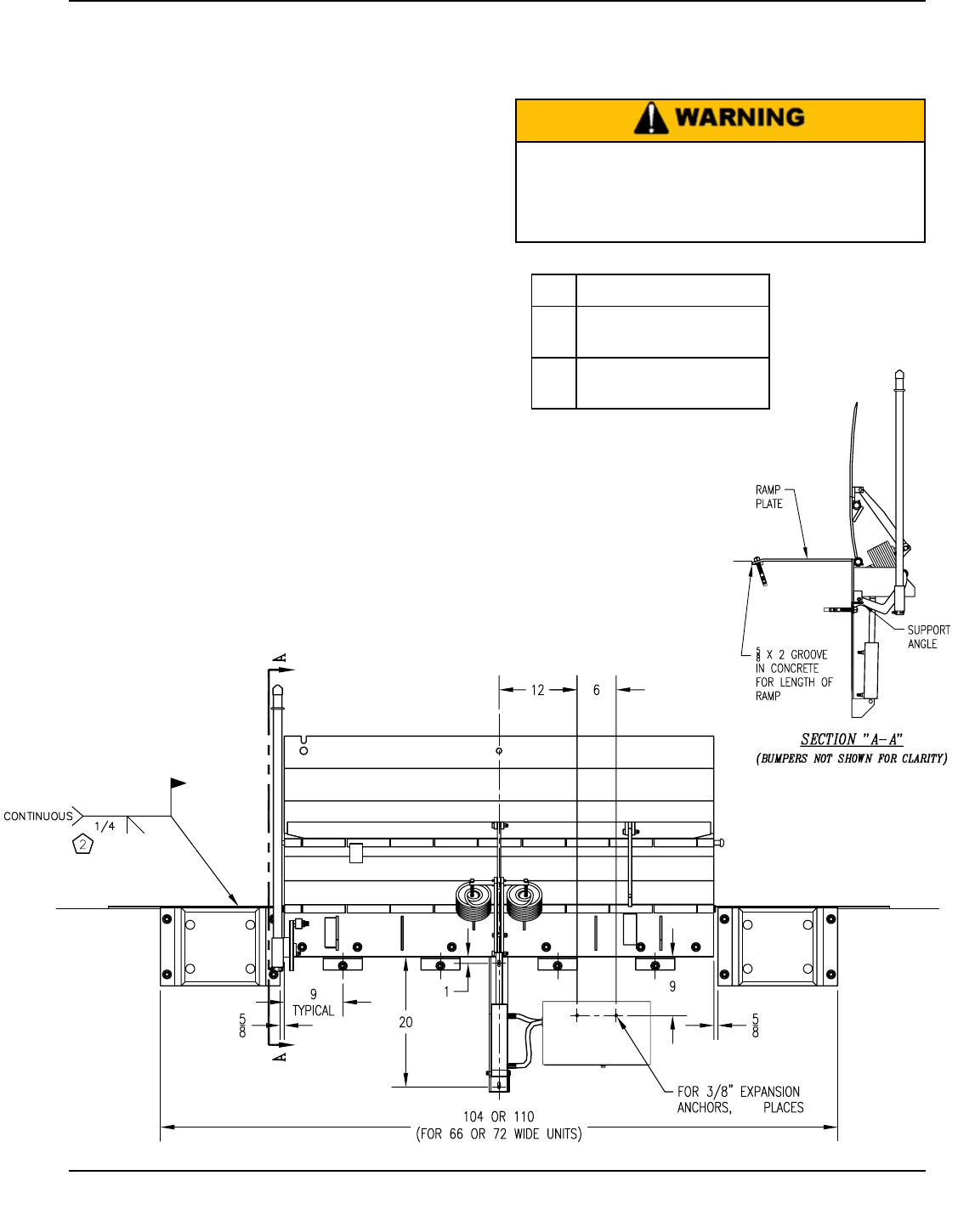
NOTE DESCRIPTION
1
Top of base plate and bumper
cover plate to be flush with top of
ramp plate.
2
Apply continuous bevel weld across
both bumpers and length of base
plate.
(2)










