Manual
Table Of Contents
- Contents
- Introduction
- Unpacking and Checking Accessories
- Installing the Displays
- Operating the Display
- OSD Keypad
- Remote Control Receiver
- LED Indicators
- Using the Display in Portrait Mode
- Using the Display in Flat or Tilted Orientation
- Using the Remote Control
- IR Command Protocol
- Turning the Display On
- Turning the Display Off
- Adjusting the Volume
- Selecting Layouts and Input Sources
- Navigating Through the Menus
- Using the Touch Screen
- Touchscreen MultiTouch Driver Installation
- Touchscreen (PQLabs) MultiTouch Platform Content
- Uninstalling the MultiTouch Driver
- Planar UltraRes Remote Monitoring Software
- External Control
- Signal Compatibility
- Color Subsampling Support
- Specifications
- Dimensions
- Troubleshooting During Installation
- Accessing Planar’s Technical Support Website
- Index

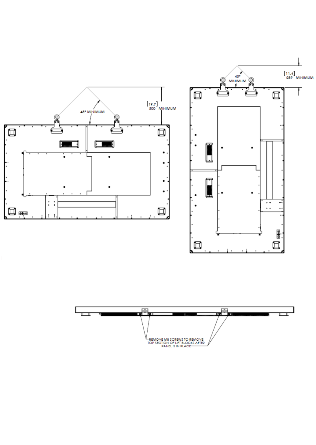
Using the Lift Blocks
20 Planar UltraRes Series User Manual
b Single point attachment: The angle between the top of the panel and the
support lines should not be less than 45 degrees.
3 Lift the panel into place.
4 Detach the upper half of the lift block from the lower half by removing the two
vertical screws. This leaves the bottom half attached to the panel but hidden.
Singe Point Lift: Landscape
Singe Point Lift: Portrait










