Manual
Table Of Contents
- Contents
- Introduction
- Unpacking and Checking Accessories
- Installing the Displays
- Operating the Display
- OSD Keypad
- Remote Control Receiver
- LED Indicators
- Using the Display in Portrait Mode
- Using the Display in Flat or Tilted Orientation
- Using the Remote Control
- IR Command Protocol
- Turning the Display On
- Turning the Display Off
- Adjusting the Volume
- Selecting Layouts and Input Sources
- Navigating Through the Menus
- Using the Touch Screen
- Touchscreen MultiTouch Driver Installation
- Touchscreen (PQLabs) MultiTouch Platform Content
- Uninstalling the MultiTouch Driver
- Planar UltraRes Remote Monitoring Software
- External Control
- Signal Compatibility
- Color Subsampling Support
- Specifications
- Dimensions
- Troubleshooting During Installation
- Accessing Planar’s Technical Support Website
- Index

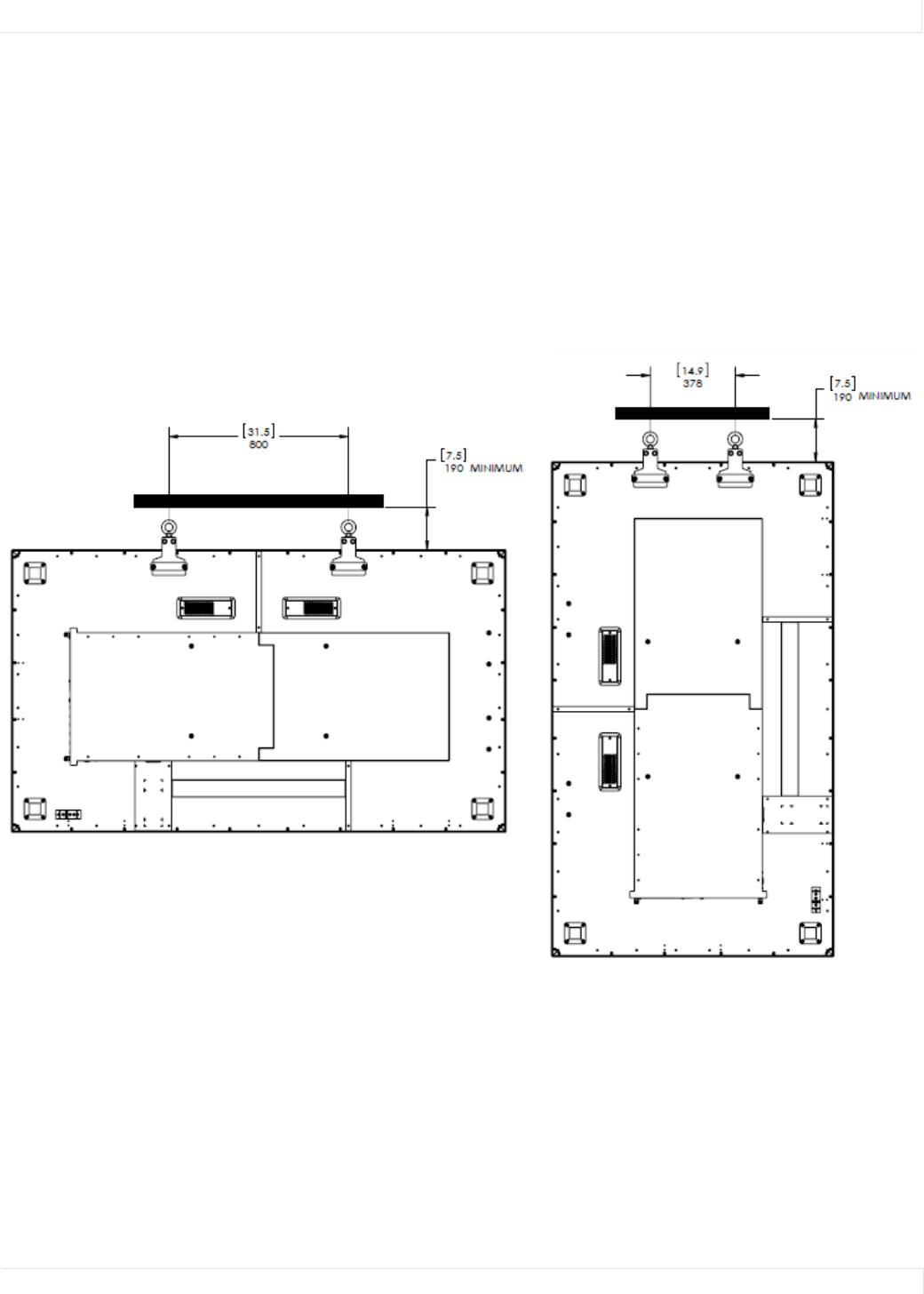
Using the Lift Blocks
Planar UltraRes Series User Manual 19
Using the Lift Blocks
1 Attach the lift blocks to the back of the panel using the provided M8 x 35 pan
head screws.
2 Securely attach your lift mechanism to the eyehooks:
a Spreader bar attachment: A spreader bar allows for a small lift profile and less
stress on the panel and eyehooks than a single point attachment. This is the
preferred method.
Spreader Bar Lift: Landscape
Spreader Bar Lift: Portrait










