Manual

Table Of Contents
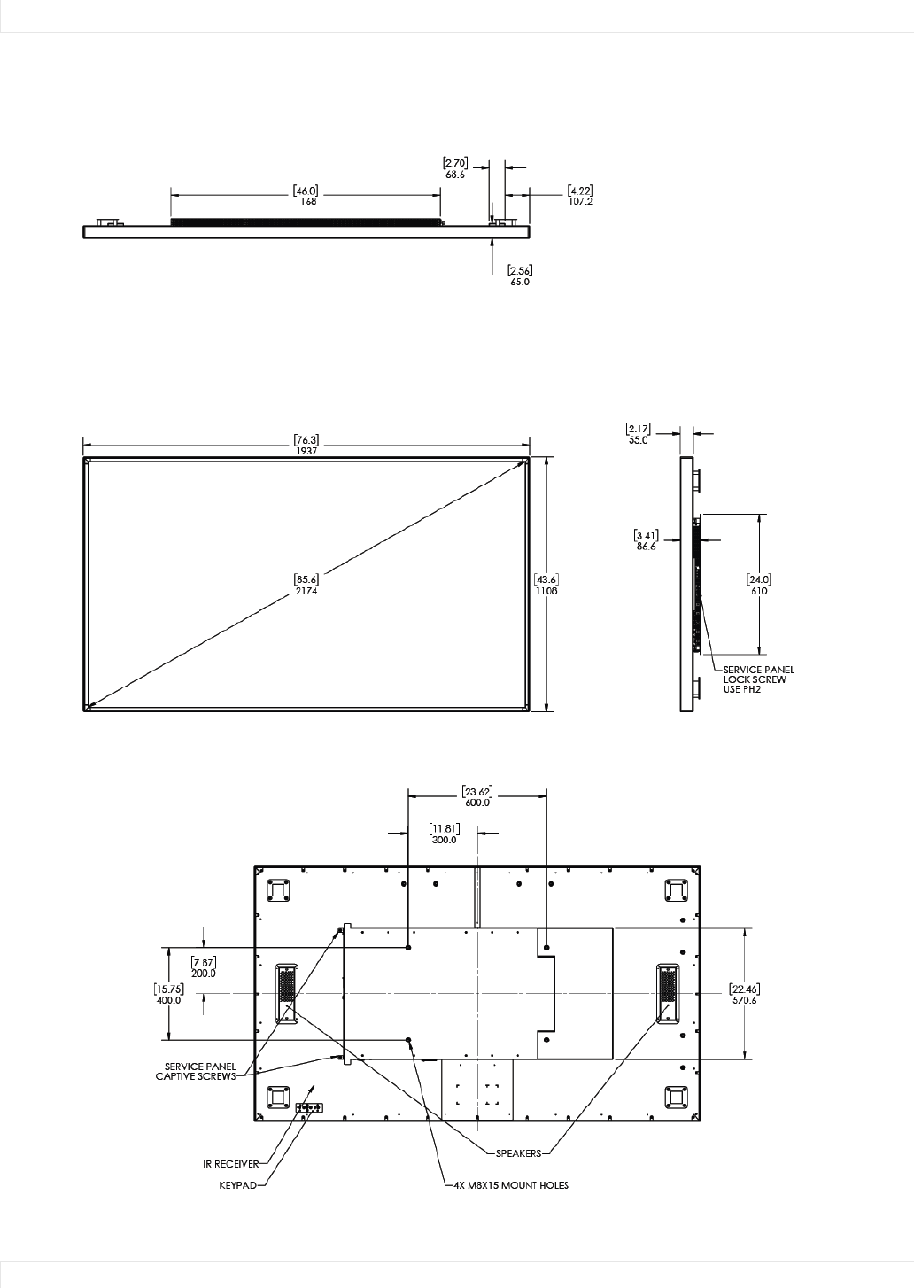
UR8651-MX
88 Planar UltraRes Series User Manual
UR8651-MX