Manual

Table Of Contents
Planar UltraRes Series User Manual 26
Operating the Display
OSD Keypad
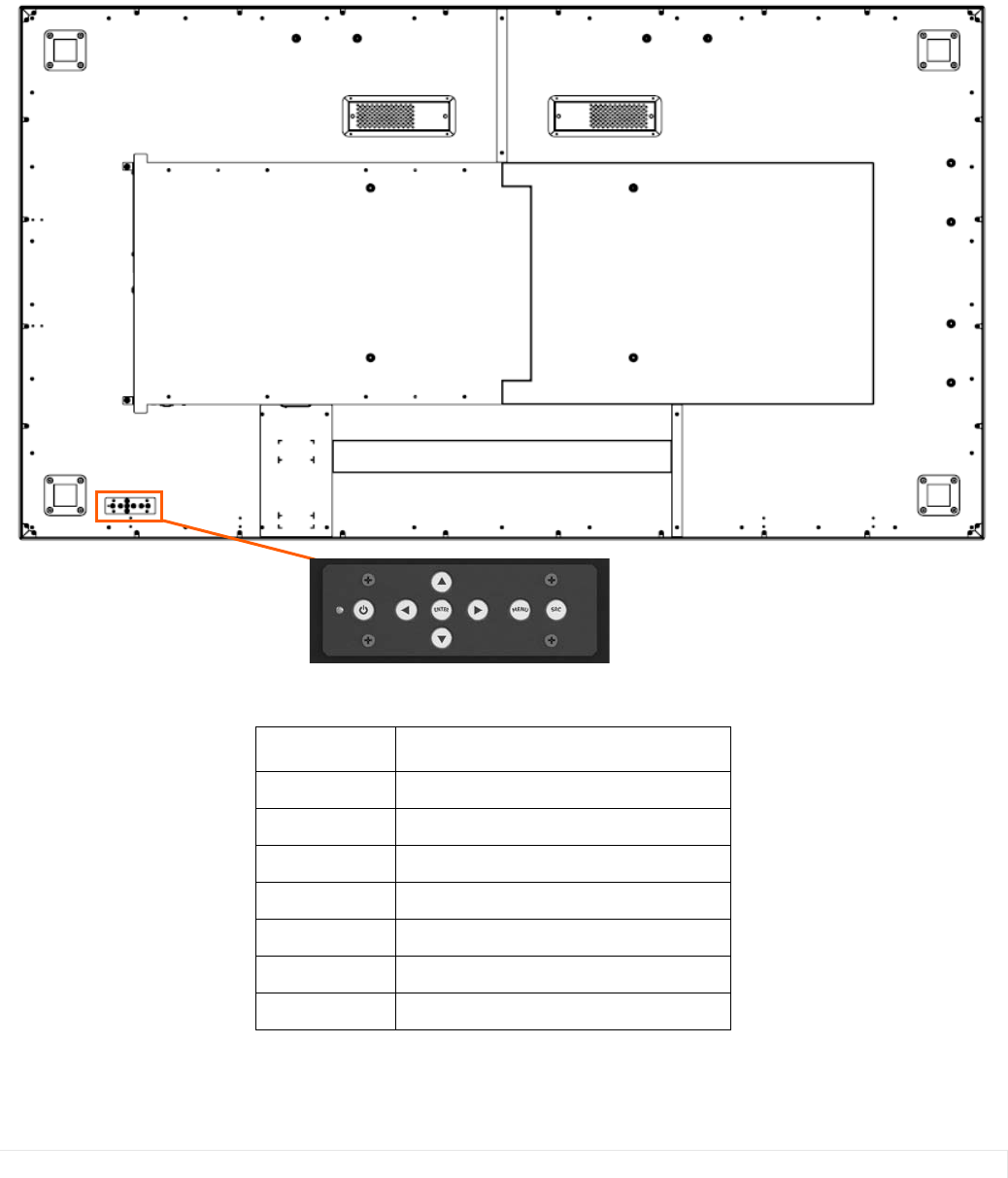
The OSD keypad is located on the rear of the display.
OSD Keypad Buttons
Key Descriptions
Power Power on/Power off
Menu Left/Decrease value
Menu Right/Increase value
Menu Up/Increase volume
Menu Down/Decrease volume
Menu Menu/Exit
SRC Source selection (toggle)