User`s guide
Table Of Contents
- Operation Instructions
- Unpacking Instructions
- Safety Precautions
- Consignes de sécurité
- Package Overview
- First Setup
- Front View of the Product
- Rear View of the Product
- Quick Installation
- Basic Operation and Calibration/Reset Instructions
- Advanced Operation—OSD Menu
- Supporting Timing Modes
- Technical Information
- Wall-Mount Installation Instructions
- Troubleshooting
- Planar Support

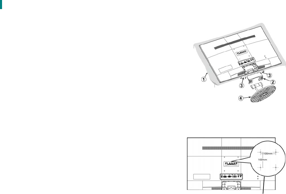
Wall-Mount Installation Instructions
Preparing To Install The Optional Wall Mount Arm (not included)
This LED LCD Monitor can be attached to a wall mounting arm
you can purchase separately.
Turn the power OFF then disconnect the cables from the LED
LCD Monitor before performing the procedure below.
1. Lay the LED LCD Monitor face down on a soft surface.
2. Remove the hinge cover.
3. Remove the 4 screws holding the stand to the hinge.
4. Remove the stand.
Attaching The Optional Wall Mount Arm (not supplied)
Follow these steps to finish installing the wall mounting arm:
1. Place the wall mounting arm onto the back of the LED LCD
Monitor. Line up the holes of the arm with the holes in the
back of the monitor.
2. Insert the 4 screws into the holes and tighten.
3. Reconnect the cables. Refer to the User’s Guide that came
with the optional wall mounting arm for instructions on
attaching it to the wall.
4mm, 0.7 pitch
threaded holes x 4
100mm x 100mm Screw
Mounting Options
NOTE
• 100mmx100mm VESA high hole (n=4), M4, pitch =0.7
mm screw mounting kit not included.
17










