Water Heater User Manual
Manuals
Brands
Pitco Frialator Manuals
Water Heater
L22-303
11
12
13
14
15
16
17
18
19
20
I8
W
ater Cooker Computer Service
Pitco P/N PP11375
L22-303 Rev 0 (01/
07)
17
8.0
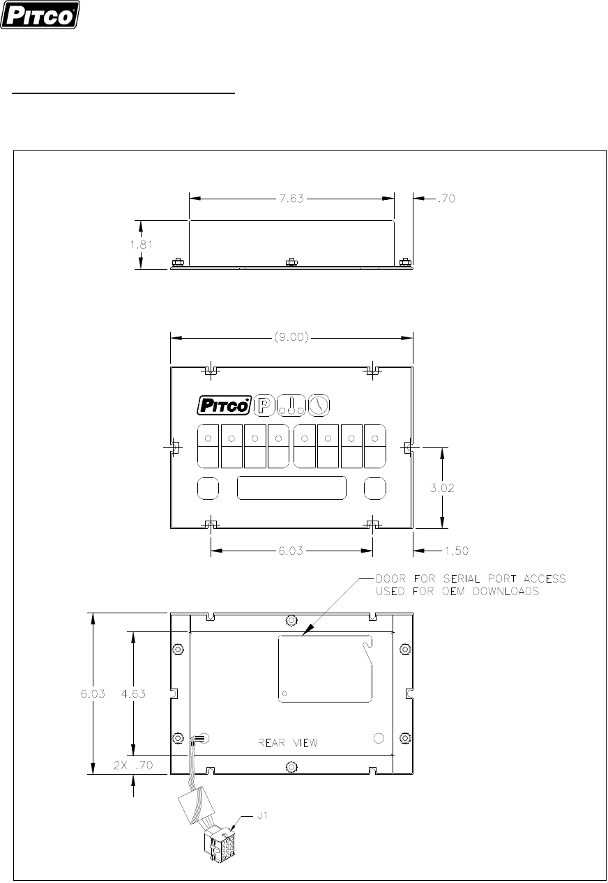
Physical Dimensions:
0
9
1
2
3
4
5
6
7
8
1
...
...
15
16
17
18
19
...
20