Replacement Part List
A Polished Chrome
B Black
D PVD Polished Nickel
E Rustic Pewter
J PVD Brushed Nickel
G Velvet Aged Bronze
K Satin Nickel
L Satin Stainless
M Almond
N Antique Bronze
P Polished Brass
Q Satin Brass
R Copper
S Stainless Steel
T Biscuit
U Rustic Bronze
V PVD Polished Brass
W White
Y Tuscan Bronze
Z Oil-Rubbed Bronze
1-800-PFAUCET www.pricepfi ster.com
19701 DaVinci, Lake Forest, CA 92610
10/15/09
FINISHES
*
Indicates Finish
All fi nishes not available on all parts
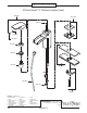
42 Series Kenzo™ 4” Centerset Lavatory Faucet
EX-042-DF-2122 Lavatory
PARTS EXPLOSION
940-876*
971-130
941-036*
941-246*
962-075
974-074
975-012
941-563*
950-124
961-060*
962-001
961-059*

