User manual

VersiDriveiPROBenutzerhandbuchIndex1.30
www.peter‐electronic.com
1
2
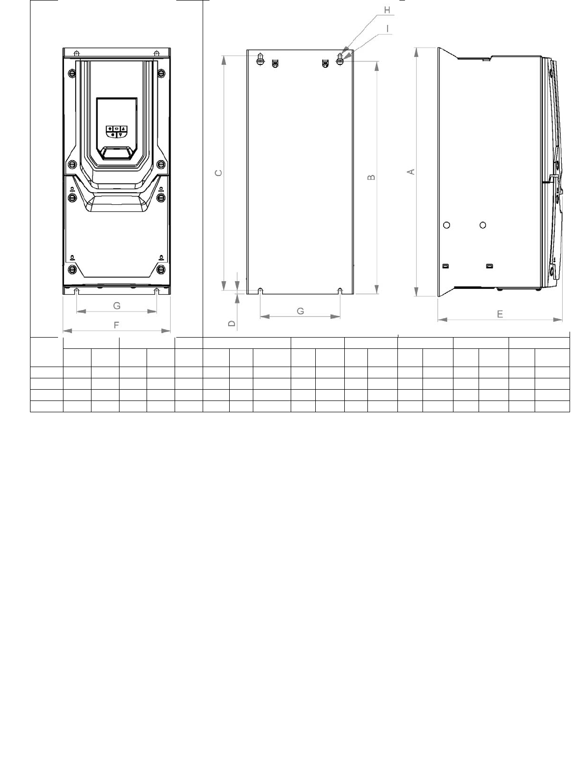
3.4.2. IP55Geräte
Um‐
richter
‐größe
A B C D E F G H I
mm Zoll mm Zoll mm Zoll mm Zoll mm Zoll mm Zoll mm Zoll mm Zoll mm Zoll
4
450 17.72 428 16.85 433 17.05 8 0.31 240 9.45 171 6.73 110 4.33 4.25 0.17 7.5 0.30
5
540 21.26 515 20.28 520 20.47 8 0.31 270 10.63 235 9.25 175 6.89 4.25 0.17 7.5 0.30
6
865 34.06 830 32.68 840 33.07 10 0.39 330 12.99 330 12.99 200 7.87 5.5 0.22 11 0.43
7
1280 50.39 1245 49.02 1255 49.41 10 0.39 360 14.17 330 12.99 200 7.87 5.5 0.22 11 0.43
SchraubengrößefürMontage:
Rahmengröße4:M8
Rahmengröße5:M8
Rahmengröße6:M10
Rahmengröße7:M10
Anzugsmomente:
AnzugsmomentefürSteuerklemmen: AlleGrößen: 0,8Nm
AnzugsmomentefürLeistungsklemmen: Rahmengröße4: 4Nm
Rahmengröße5: 15Nm
Rahmengröße6: 20Nm
Rahmengröße7: 20Nm