Dimensional Drawing
DATE
SIGNATURES
REVISIONS
THIS DOCUMENT / PUBLICATION / SOFTWARE / DRAWING CONTAINS PROPRIETARY INFORMATION WHICH IS THE PROPERTY OF THE PERLICK CORPORATION. IT MAY NOT BE REPRODUCED OR TRANSMITTED IN ANY
FORM, ELECTRONIC OR MECHANICAL, INCLUDING PHOTOCOPYING, RECORDING, OR USED IN ANY INFORMATION STORAGE, TRANSMISSION, OR RETRIEVAL SYSTEM, WITHOUT WRITTEN PERMISSION FROM THE PERLICK
CORPORATION. COPYRIGHT 2001 PERLICK CORPORATION. ALL RIGHTS RESERVED.
DESIGNED
DRAWN
FINISH:
1.001 & UP:
QTY.:
.012
HOLES: .0135 THRU .125: .004
.1260 THRU .250: .005
.2510 THRU .500: .006
.5010 THRU .750: .008
.7510 THRU 1.000: .010
BREAK SHARP EDGES - .015 X 45°
RADIUS SHARP FILLETS - .015 TO .031
UNLESS OTHERWISE SPECIFIED:
TITLE:
PURCHASE REC.:
PART NO.
REFERENCE:
DWG NO.
MATERIAL:
Perlick Corporation
Milwaukee, Wisconsin
SHEET 3 OF 9SCALE = 1:5
WOOD
CUSTOM
11/10/2015
11/10/2015
JMP
JMP
WOOD OVERLAY, GLASS DOOR
24" RESIDENTIAL STD. HEIGHT DOOR
68135A-3
68135A
A
11/10/2015
RELEASE FOR PRODUCTION
DIMENSIONS ARE IN INCHES
TOLERANCES:
.X= ±.1, .XX = ±.03, .XXX = ±.015,
ANGULAR: ±1.5°, FRACTIONS: ±1/64
JMP
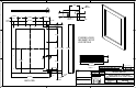
15 3/32"
SW
2
2
B
A
3
C
B
A
1
C
1
3
J:\Dwg\68000\68135A.slddrw
30 3/16"
A
IF ADDING LOCKS,
SEE SHEET 8 FOR
LOCK DETAILS
DETAIL A
SCALE 1 : 1
3/8"
1 9/32"
7/16"
9/16" DEEP
3/8"
1/2"
BACK VIEW
REF.
1/4"
23 23/32"
5"
9/16"
8 1/2"
5 61/64" 5" 3 57/64"
20 47/64"
3 57/64"
REF.
1 31/64"
1 31/64"
1 31/64"
27 7/32"
REF.
1 31/64"
8 1/2"
8 1/2"
2 11/32"
REF.
2 11/32"
B B
NOTE: VALID FOR ANY ORDERS
ENTER ON OR AFTER JAN. 1, 2016
SECTION B-B
SCALE 1 : 1
3/4"
2 61/64"


