User Guide

© 2008
8
15" Signature Series Operation / Installation Manual
DD
C
B
B
14 
9
/16”
13 
12
/32”
13 
3
/16”
10 
57
/64”
8 
25
/32”
5 
25
/32”
3 
11
/16”
2 
15
/64”
1 
25
/32”
27
/32”
0”
0”
27
/32”
2 
15
/64”
3 
11
/16”
Ø 
1
/8”
1
/2” Deep
Typical
13 
39
/64”
10 
7
/64”
9”
16 
39
/64”
15 
7
/64” on
locking doors
only
Rearview
These (2) holes
not to be drilled
for a door with
lock
25 
49
/64”
24 
43
/64”
13
/64”
26 
35
/64”
29 
3
/8”
30 
15
/64”
13
/64”
19
/64”
7
/16”
Ø 
11
/32” 
15
/32” deep
Hole drilled at both ends
1
/16”
R 
29
/64”
Front
Rear
Section D-D
3
/4”
7
/8”
1 
25
/32”
3
/4” hole detailed
in view “C”
All features called out
in this detail view apply
only to panels being
used on locking doors
R 1 
11
/16”
Ø 
1
/8”
1
/4” deep
Ø 
3
/4”
thru
1”
2”
27
/64”
1 
1
/8”
1 
1
/16”
1 
3
/16”
3 
1
/4”
Ref
Detail C
3
/64”
2 
1
/8”
27
/64”
deep
11
/64”
deep
19
/32”
deep
Section B-B
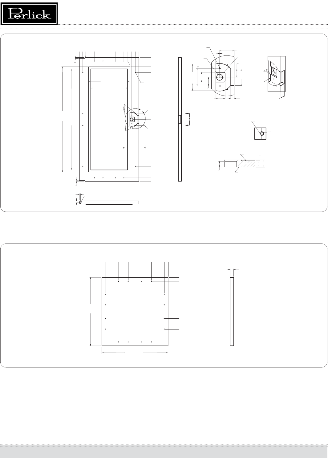
Figure 8. Glass Wood Overlay Panel
Figure 9. Drawer Solid Wood Overlay
13 
23
/32”
10 
57
/64”
8 
25
/64”
5 
25
/32”
3 
11
/16”
27
/32”
0”
0”
27
/32”
3 
11
/16”
6 
1
/64”
9 
1
/64”
11 
23
/64”
14 
3
/16”
14 
9
/16”
REARVIEW
15 
1
/32”
3
/4”










