Specification Sheet

8300 W. Good Hope Rd. • Milwaukee, WI 53223 • (800) 558-5592 • Fax: (414) 353-7069 • perlick.com
Perlick is committed to continuous improvement. Therefore, we reserve the right to change specications without warning.
Form No.HP15B-3
Rev. 02.09.2017
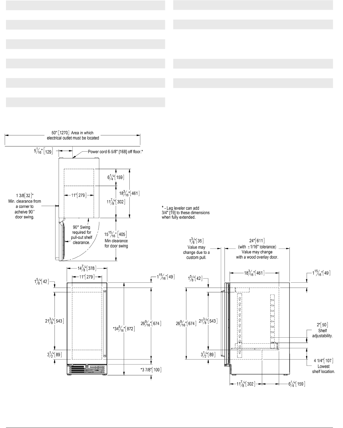
Overall Width  14-7/8” (37.78 cm)
Overall Height 34-1/4” (86.96 cm)
Overall Depth 24” (60.96 cm.)
Opening Width 15” (38.1 cm.)
Opening Height 34-3/8” (87.31 cm.)
Opening Depth 24” (60.96 cm.)
Refrigerated Volume 2.8 cu. ft.
Door Swing Clearance 16” (40.64 cm) minimum
Electrical 115V, 60Hz., 1 Phase, 2.3 amps
Plumbing None Required
Shipping Weight 150 lbs (68.04 kg)
Annual Energy Usage 280 kWh/yr
product specifications indoor models
HP15BS-3-1L*  Solid stainless steel door, hinge left
HP15BS-3-2L* Solid wood overlay door, hinge left
HP15BS-3-3L* Stainless steel glass door, hinge left
HP15BS-3-4L* Wood overlay glass door, hinge left
outdoor models
HP15BO-3-1L*  Solid stainless steel door, hinge left
HP15BO-3-2L* Solid wood overlay door, hinge left
HP15BO-3-3L* Stainless steel glass door, hinge left
HP15BO-3-4L* Wood overlay glass door, hinge left
* Also available hinge right


