HC24 Operation and Installation Manual

17
Operation & Installation Manual
C-Series (HC24 models)
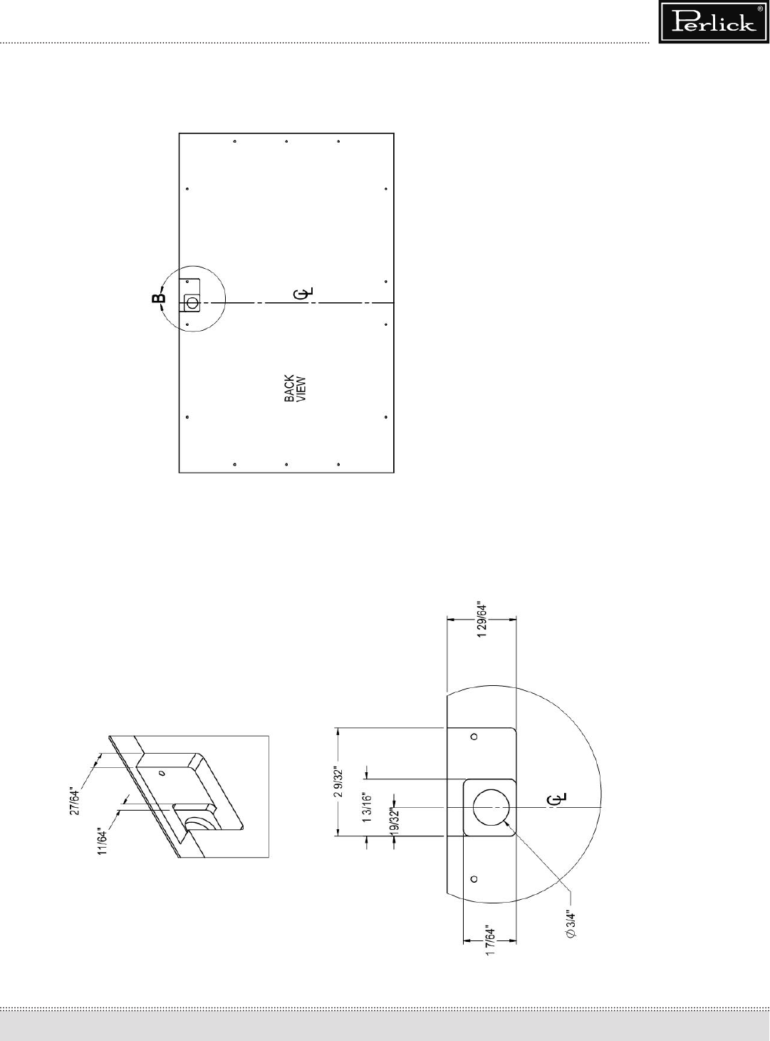
Figure 18 - Lock installation, wood overlay drawer panel