HC24 Operation and Installation Manual

12
Operation & Installation Manual
C-Series (HC24 models)
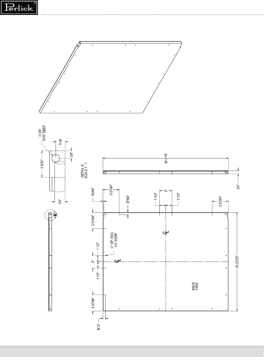
Figure 13 - Solid wood overlay panel template