HC24 Operation and Installation Manual

10
Operation & Installation Manual
C-Series (HC24 models)
11 9/16"
3/4"
R
1/4"
1"
23 7/8"
3 27/64"
1"
C
FRONT VIEW
11/16"
17/64"
1 13/64" 1 13/64"
B
B
D
REAR VIEW
NOTE: ALL INTERNAL RADII ARE 1/8IN UNLESS OTHERWISE SPECIFIED
1/32"
9/32"
SECTION B-B
SCALE 1 : 2
1"
5/16"
TYPICAL
3/8"
TYPICAL
3"
TYPICAL
3/16"
TYPICAL
7/32"
DETAIL C
SCALE 1 : 2
3/8"
3/8"
11/16"
1"
3/32"
5/32"
43/64"
29/64"
DETAIL D
SCALE 1 : 1
3/8"
1/2"
7/8"
1/8"
3/32"
9/32"
9/32"
7/64" 7/64"
1/4"
METAL CLIP REQUIRED FOR SNAP IN RETAINER THAT
ASSEMBLES GRILL TO THE UNIT. THIS CLIP MUST BE
SCREWED TO THE GRILL USING THE FEATURES SHOWN
IN DETAIL VIEW "D"
1/32"
THICK (20GA)
GALVANIZED OR
STAINLESS STEEL
RECOMMENDED
NOTE: GRILL SHOWN ON THIS PAGE IS FOR EITHER A SINGLE STAND ALONE UNIT OR
THE BOTTOM UNIT OF A STACKED CONFIGURATION
2
2
B
A
3
C
B
A
1
C
1
3
SW
THIS DOCUMENT / PUBLICATION / SOFTWARE / DRAWING CONTAINS PROPRIETARY INFORMATION WHICH IS THE PROPERTY OF THE PERLICK CORPORATION. IT MAY NOT BE REPRODUCED OR TRANSMITTED IN ANY FORM, ELECTRONIC OR MECHANICAL,
INCLUDING PHOTOCOPYING, RECORDING, OR USED IN ANYINFORMATION STORAGE, TRANSMISSION, OR RETRIEVAL SYSTEM, WITHOUT WRITTEN PERMISSION FROM THE PERLICK CORPORATION. COPYRIGHT 2001 PERLICK CORPORATION. ALL RIGHTS RESERVED.
SHEET 1 OF 4
SCALE =
TITLE:
Perlick Corporation
MATERIAL:
DATE
SIGNATURES
DESIGNED
DRAWN
CHECKED
Milwaukee, Wisconsin
PURCHASE REC.:
REFERENCE:
UNLESS OTHERWISE SPECIFIED:
PART NO.
DWG NO.
REVISIONS
GRILL, WOOD
STAND ALONE
WOOD GRILL
WOOD GRILL, STACKING
NAH
4/23/2008
NAH
4/23/2008
4/23/2008
1:3
WOOD
QTY.:
FINISH:
4/23/2008
BREAK SHARP EDGES - 015 X 45°.
RADIUS SHARP FILLETS - .015 TO .031
DIMENSIONS ARE IN INCHES
TOLERANCES:
.X= ,
.XX = ,
.XXX = ,
ANGULAR: ±1.0°, FRACTIONS: ±1/16
J:\Dwg\_ Assembly\HHC GEN2\HHC GEN2 24IN RESIDENTIAL\Wood Grill.slddrw
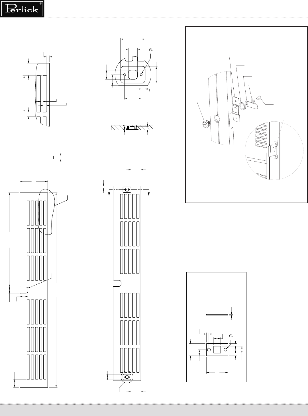
Figure 8- Toe Plate Wood Overlay Template
Mounting bracket
Screw
Lockwasher
Lock strike
Nut
Lock bracket
Lock body
Figure 12 - Lock installation