HC24 Operation and Installation Manual

5
Operation & Installation Manual
C-Series (HC24 models)
HC24 Models
3
1
2
"
23
1
16
"
20"
26
9
16
"
24
15
16
"
Min. clearance
for door swing.
6
1
4
"
11
7
8
"
18
3
16
"
20"
7
9
16
"
50" Area in which
electrical outlet must be located.
11
7
8
"
6
1
4
"
3
1
2
"
23
1
16
"
26
9
16
"
18
3
16
"
2" Shelf
adjustability.
4
1
4
" Lowest
shelf location.
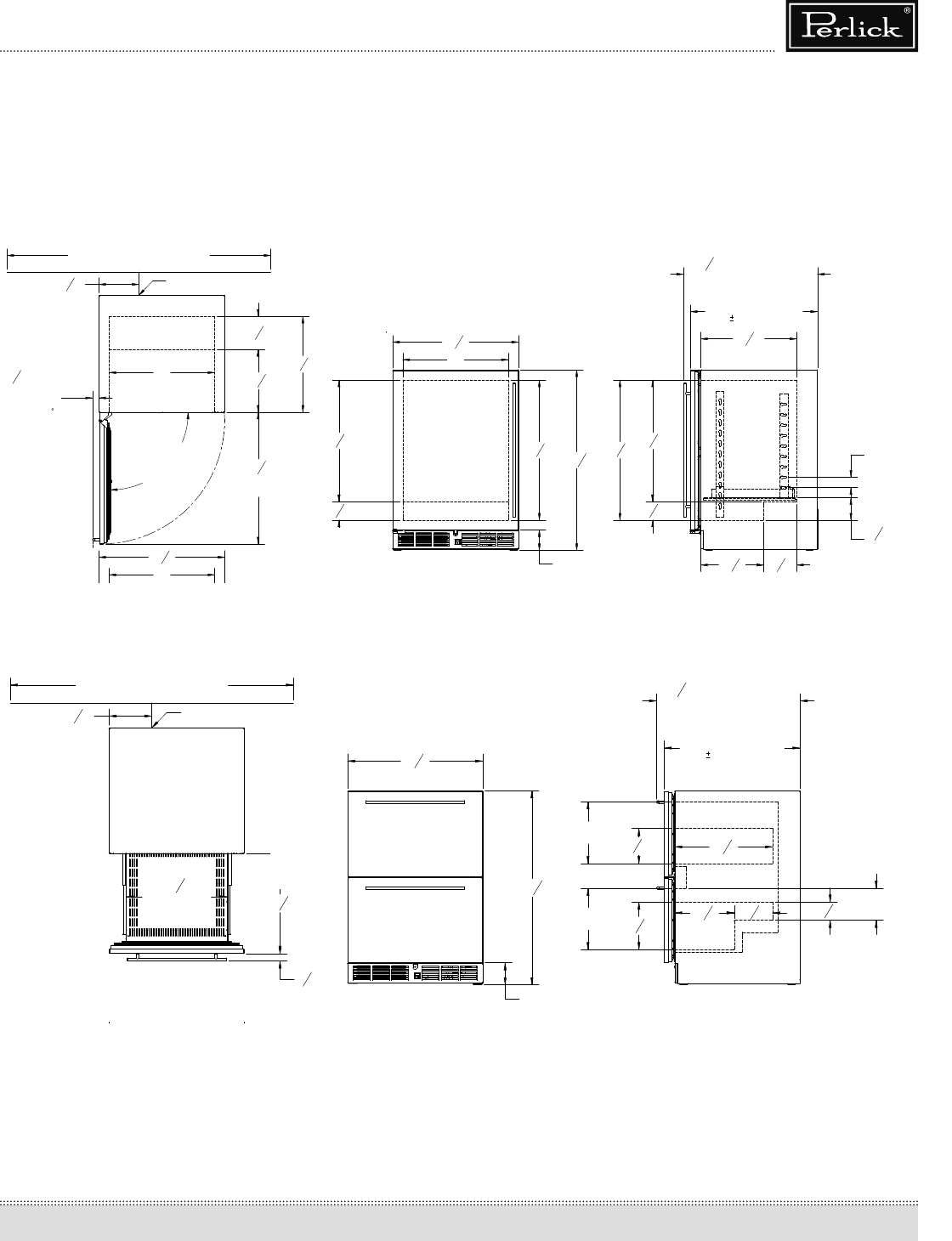
CSERIES HC24 CABINET
*
Leg leveler can add
3/4" to these dimensions
when fully extended.
JMP 4/20/2012
MILWAUKEE, WI 53223
SCALE: 1:10
J:\Dwg\95000\95079.slddrw
PERLICK CORPORATION
NOT TO BE COPIED OR USED DETRIMENTAL TO OUR INTERES
TS
DR.:
PRINTED
DATE:
4/20/2012
95079
PROPERTY OF THE PERLICK CORP.
SHEET 1 OF 2
23
*3 7/8"
7
"
8
*34
1
4
"
Power cord 65/8" off floor.*
pullout shelf
required for
clearance.
90° Swing
1
3
16
" Min.
clearance from
a corner to
acheive 90
door swing.
1/16" tolerance)
24"
(with
25
3
8
" Values may change
due to custom pull
with a wood overlay door.
3
1
2
"
23
1
16
"
20"
26
9
16
"
24
15
16
"
Min. clearance
for door swing.
6
1
4
"
11
7
8
"
18
3
16
"
20"
7
9
16
"
50" Area in which
electrical outlet must be located.
11
7
8
" 6
1
4
"
3
1
2
"
23
1
16
"
26
9
16
"
18
3
16
"
2" Shelf
adjustability.
4
1
4
" Lowest
shelf location.
CSERIES HC24 CABINET
*
Leg leveler can add
3/4" to these dimensions
when fully extended.
JMP 4/20/2012
MILWAUKEE, WI 53223
SCALE: 1:10
J:\Dwg\95000\95079.slddrw
PERLICK CORPORATION
NOT TO BE COPIED OR USED DETRIMENTAL TO OUR INTERESTS
DR.:
PRINTED
DATE:
4/20/2012
95079
PROPERTY OF THE PERLICK CORP.
SHEET 1 OF 2
23
*3 7/8"
7
"
8
*34
1
4
"
Power cord 65/8" off floor.*
pullout shelf
required for
clearance.
90° Swing
1
3
16
" Min.
clearance from
a corner to
acheive 90
door swing.
1/16" tolerance)
24"
(with
25
3
8
" Values may change
due to custom pull
with a wood overlay door.
Door Models
(Figure 1)
17
1
4
"
6
3
16
"
product ht.
5 9/16" Max.
3
3
16
"
8
3
8
"
10 3/4" Max.
product ht.
10
1
2
"
6
3
4
"
10 13/16" Max.
product ht.
7
9
16
"
50" Area in which
electrical outlet must be located.
J:\Dwg\95000\95079.slddrw
JMP
MILWAUKEE, WI 53223
DATE:
PERLICK CORPORATION
NOT TO BE COPIED OR USED DETRIMENTAL TO OUR INTERESTS
DR.:
PRINTED
7/31/2012
SCALE: 1:10
95079
4/20/2012
PROPERTY OF THE PERLICK CORP.
SHEET 2 OF 2
CSERIES HC24 CABINET
*
Leg levelers can add
3/4" to these dimensions
when fully extended.
1/16" tolerance)(with
24"
25
5
16
" Values may change
due to custom pull
with a wood overlay door.
Power cord 65/8" off floor.*
"
5
16
16
"
11
17
1
17
13
16
"
Inside Drawer
(Top & Bottom)
*3 7/8"
7
23
8
"
*34
1
4
"
17
1
4
"
6
3
16
"
product ht.
5 9/16" Max.
3
3
16
"
8
3
8
"
10 3/4" Max.
product ht.
10
1
2
" 6
3
4
"
10 13/16" Max.
product ht.
7
9
16
"
50" Area in which
electrical outlet must be located.
J:\Dwg\95000\95079.slddrw
JMP
MILWAUKEE, WI 53223
DATE:
PERLICK CORPORATION
NOT TO BE COPIED OR USED DETRIMENTAL TO OUR INTERESTS
DR.:
PRINTED
7/31/2012
SCALE: 1:10
95079
4/20/2012
PROPERTY OF THE PERLICK CORP.
SHEET 2 OF 2
CSERIES HC24 CABINET
*
Leg levelers can add
3/4" to these dimensions
when fully extended.
1/16" tolerance)(with
24"
25
5
16
" Values may change
due to custom pull
with a wood overlay door.
Power cord 65/8" off floor.*
"
5
16
16
"
11
17
1
17
13
16
"
Inside Drawer
(Top & Bottom)
*3 7/8"
7
23
8
"
*34
1
4
"
Drawer Models
(Figure 2)
* -Leg leveler can add 3/4” to these dimensions when fully extended










