HC24 Operation and Installation Manual
Manuals
Brands
Perlick Manuals
Appliances
Wine Cooler
11
12
13
14
15
16
17
18
19
20
17
Operation & Installation Manual
C-Series (HC24 models)
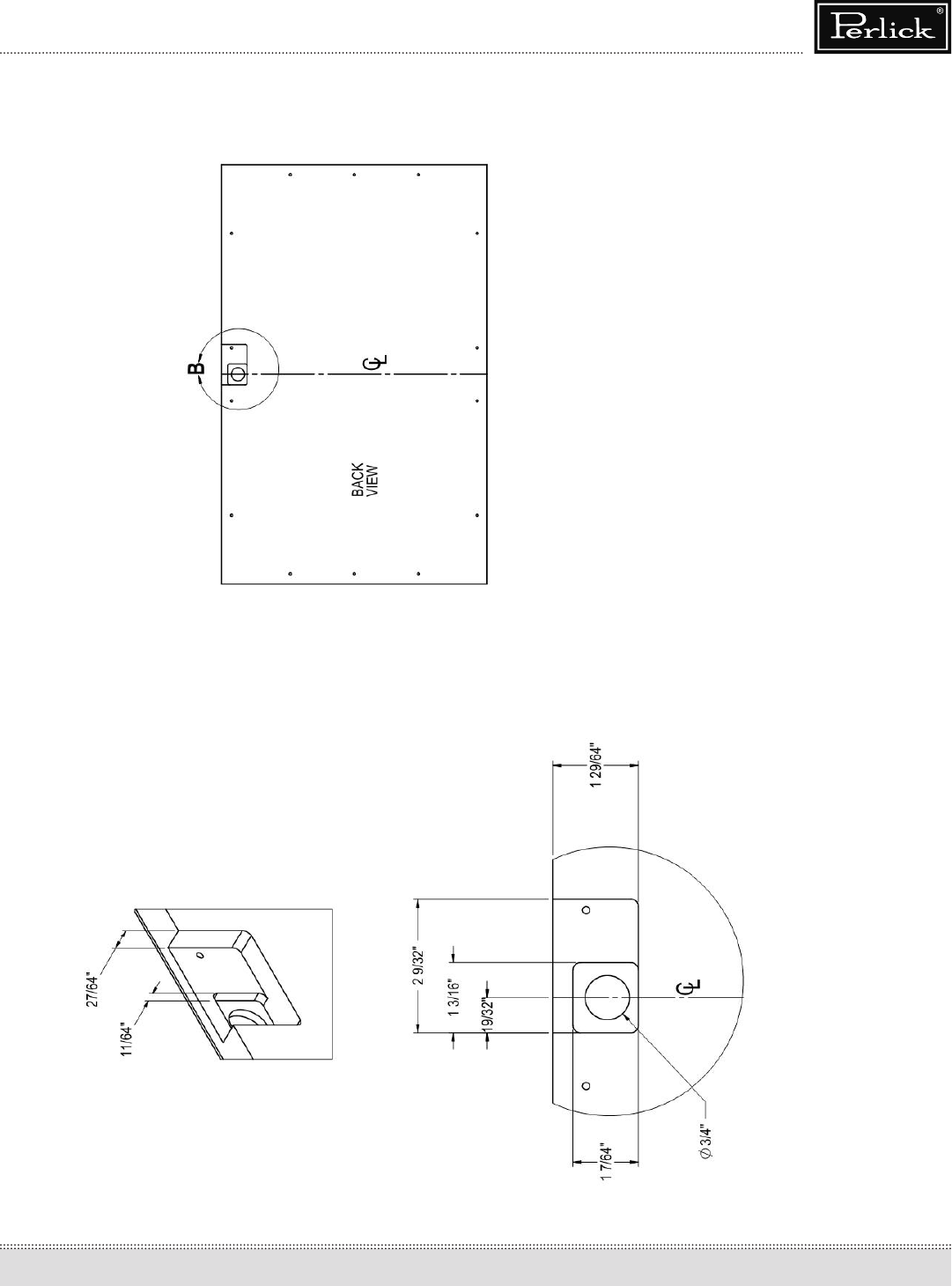
F
igure 18 - L
ock installation, wood overlay dr
awer panel
1
...
...
15
16
17
18
19
...
...
23