Spec Sheet
Manuals
Brands
Perlick Manuals
26-50 Bottles
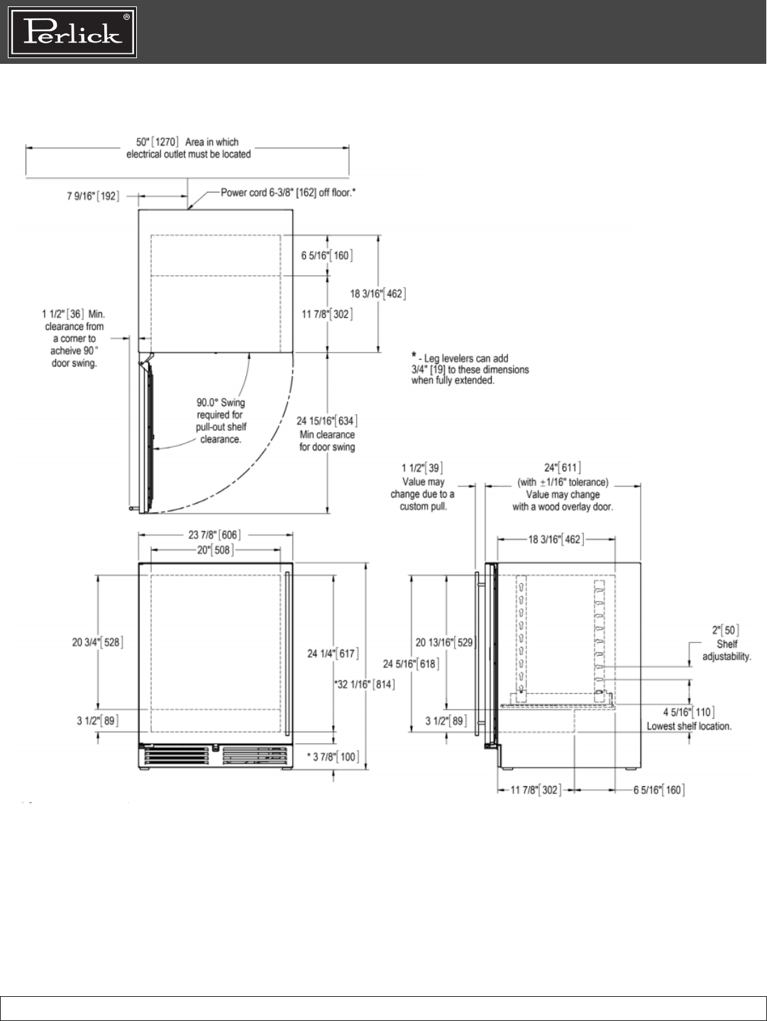
ADA Compliant Series 24 Inch Wine Cooler
1
2
3
4
PERLICK C
ORPORA
TION
8300
W
. Good Hope Rd., Milwaukee, WI 53223 • (800) 558-5592 • perlick.com
PRODUCT SPECIFICA
TION SHEETS
Residential
Undercounter Refrigeration
24
”
AD
AC
OMPLIANT SERIES
Wine R
eserve
Form No. Z2680_HA24WB_Gen 4
Rev 02.21.2021
1
...
2
3
4