Solid Door Overlay Template Guide

Perlick Corporation
DATESIGNATURES
REVISIONS
THIS DOCUMENT / PUBLICATION / SOFTWARE / DRAWING CONTAINS PROPRIETARY INFORMATION WHICH IS THE PROPERTY OF THE PERLICK CORPORATION. IT MAY NOT BE REPRODUCED OR TRANSMITTED IN ANY
FORM, ELECTRONIC OR MECHANICAL, INCLUDING PHOTOCOPYING, RECORDING, OR USED IN ANY INFORMATION STORAGE, TRANSMISSION, OR RETRIEVAL SYSTEM, WITHOUT WRITTEN PERMISSION FROM THE PERLICK
CORPORATION. COPYRIGHT 2001 PERLICK CORPORATION. ALL RIGHTS RESERVED.
DESIGNED
.010
DRAWN
FINISH:
1.001 & UP:
QTY.:
HOLES:
.012
.0135 THRU .125: .004
.1260 THRU .250: .005
.2510 THRU .500: .006
.5010 THRU .750: .008
.7510 THRU 1.000:
BREAK SHARP EDGES - .015 X 45°
RADIUS SHARP FILLETS - .015 TO .031
UNLESS OTHERWISE SPECIFIED:
TITLE:
PURCHASE REC.:
PART NO.
REFERENCE:
DWG NO.
MATERIAL:
Milwaukee, Wisconsin
SHEET 5 OF 9
SCALE = 1:5
WOOD
CUSTOM
11/10/2015
11/10/2015
JMP
JMP
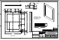
GLASS DOOR WOOD OVERLAY
RESIDENTIAL ADA DOOR
68135A-5
68135A
A
11/10/2015
RELEASE FOR PRODUCTION
DIMENSIONS ARE IN INCHES
TOLERANCES:
.X= ±.1, .XX = ±.03, .XXX = ±.015,
ANGULAR: ±1.5°, FRACTIONS: ±1/64
JMP
68135A-3
B 06/07/2017
ADDED DUAL DIMENSIONS IN
TEC
13 31/32"
NOTE: VALID FOR ANY ORDERS
ENTER ON OR AFTER JAN. 1, 2016
SW
2
2
B
A
3
C
B
A
1
C
1
3
C:\Perlick\Engineering\Legacy\Dwg\68000\68135A.slddrw
BACK VIEW
7 3/4"
1/4"
23 23/32"
5"
9/16"
REF.
5 61/64" 5" 3 57/64"
20 47/64"
3 57/64"
REF.
1 31/64"
1 31/64"
1 31/64"
24 31/32"
REF.
1 31/64"
7 3/4"
7 3/4"
2 11/32"
REF.
2 11/32"
B B
A
27 15/16"
IF ADDING LOCKS,
SEE SHEET 8 FOR
LOCK DETAILS
SECTION B-B
SCALE 1 : 1
3/4"
2 61/64"
DETAIL A
SCALE 1 : 1
3/8"
1 9/32"
7/16"
9/16" DEEP
3/8"
1/2"

Summary of content (2 pages)