Installation instructions
Manuals
Brands
Perlick Manuals
Other
H50IMWAD
1
2
3
4
5
6
7
8
9
10
Table Of Contents
Important Safety Information
I. Specifications
A. Construction
B. Nameplate Rating
C. Dimensions/Connections
1. H50IMS-R, H-50IMS-L
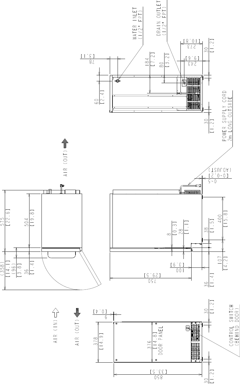
2. H50IMW
3. H50IMS-ADL, H50IMS-ADR
4. H50IMW-AD
II. Installation and Operating Instructions
A. Checks Before Installation
B. Location
1. General
2. Built-In Installation Site
C. Door Overlay Panel Fabrication and Attachment (H50IMW, H50IMW-AD)
D. Setup
E. Electrical Connection
F. Water Supply and Drain Connections
G. Final Checklist
H. Startup
III. Cleaning and Maintenance
A. Cleaning and Sanitizing Instructions
1. Cleaning Solution
2. Cleaning Procedure
3. Sanitizing Solution
4. Sanitizing Procedure
B. Maintenance
C. Preparing the Icemaker for Long Storage
7
2. H50IMW
Units: mm [in.]
1
...
...
5
6
7
8
9
...
...
31