Installation instructions
Table Of Contents

13
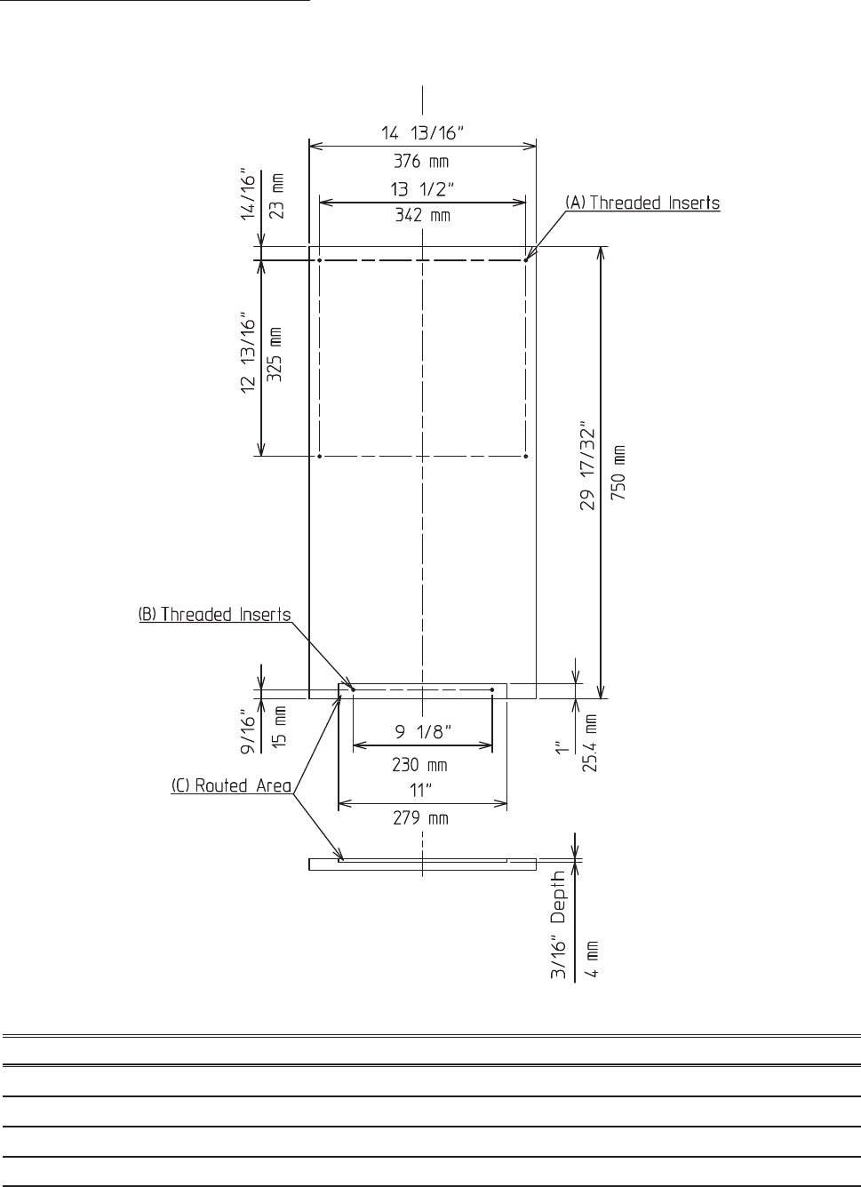
(2) Overlay Panel Specification
Use the specication that applies to your icemaker (H50IMW or H50IMW-AD) and the
directions that follow to prepare your overlay panel.
(a) H50IMW
H50IMW Overlay Panel Specication
Overlay Panel Height 29 17/32" (750 mm)
Overlay Panel Width 14 13/16" (376 mm)
Overlay Panel Thickness 5/8" (16 mm) minimum; 3/4" (19 mm) maximum
Overlay Panel and Door Weight (total) 20 lb. (9 kg) maximum










