
Column Refrigeration Service Manual
Return to Table of Contents
91
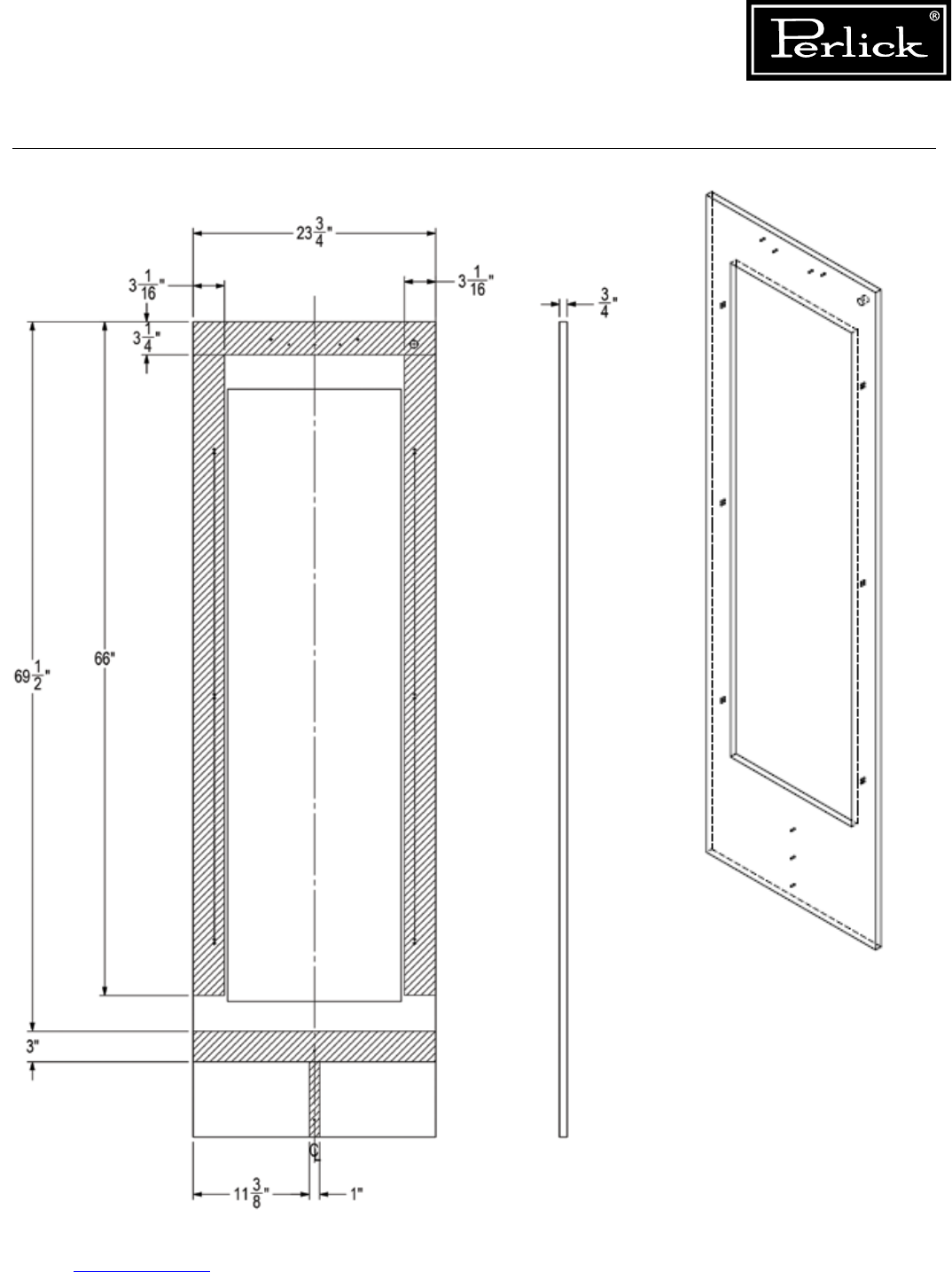
8.12.7 CR24 Screw Zone For Overlay Templates
NOTE: Hatch areas should provide
enough thickness for wood screws
for overlay attachment bracket.
Figure 8-12.1. CR24 Screw Zone For Overlay
Templates