Service Manual
Manuals
Brands
Perlick Manuals
Refrigerator
Perlick CR30R12L
61
62
63
64
65
66
67
68
69
70
Column Refrigeration Service Manual
Return to
T
able of Contents
61
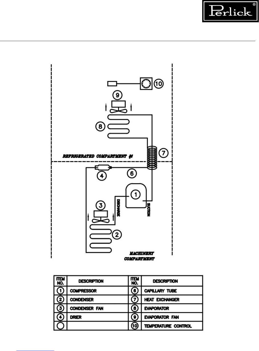
6.12
Refrigeration System Diagram - Medium Temperature
Figure 6-17
.1.
Refriger
ation System Diagram
(Medium T
emperature)
1
...
...
59
60
61
62
63
...
...
133