Use And Care Manual

Page 20
WARNING:
• To reduce the risk of injury, only use the chuck key
provided with this drill press or a duplicate of it. This chuck
key is self-ejecting and will “pop” out of the chuck when
you let go. This action is designed to help prevent throwing
of the chuck key from the chuck when power is turned
“on”. Do not use any other key as a substitute; order a
new one if damaged or lost.
• To reduce the risk of injury, make sure the chuck key is
removed from the chuck before starting any drilling
operation.
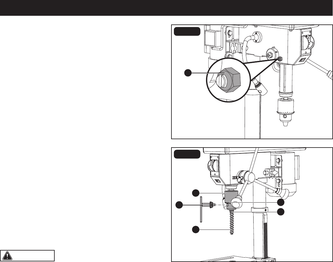
A
A
E
B
D
C
FIG. 17
ADJUSTMENTS
ANGULAR PLAY OF THE SPINDLE
(Fig. 17)
Move the spindle to the lowest downward position and hold
in place. With your other hand, try to make it revolve around
its axis with a side motion. If there is too much play, proceed
as follows:
• Loosen the lock nut (A).
• Turn the screw clockwise to eliminate the play but without
obstructing the upward and downward motion of the
spindle (a little bit of play is normal).
• Tighten the lock nut (A).
FIG. 18
INSTALL DRILL BITS (Fig. 18)
• Place the chuck key (A) into the side keyhole of the chuck
(B), meshing the gear teeth (C).
• Turn the chuck key counter-clockwise to open the chuck
jaws (D).
• Insert a drill bit (E) into the chuck far enough to obtain
maximum gripping of the chuck jaws.
• Centre the drill bit in the chuck jaws before nal tightening
of the chuck.
• Use the chuck key for the nal tightening to make sure
the drill bit will not slip while drilling.










