Specifications

9
2012-08-31 #:203-9204-1
1a-3
1a-4
Level wallplate. Install using wood screws provided.
Nivele e instale.
Mettez à niveau et procédez au montage.
Waagerecht ausrichten und anbringen.
Installeer de schroeven waterpas.
Livella e installa.
Vyrovnejte a namontujte.
Vyrovnajte a namontujte.
Nivelar e instalar.
Dengeleyin ve takın.
ENG
ESP
FRN
DEU
NEL
ITL
ČEŠ
SLK
POR
TÜR
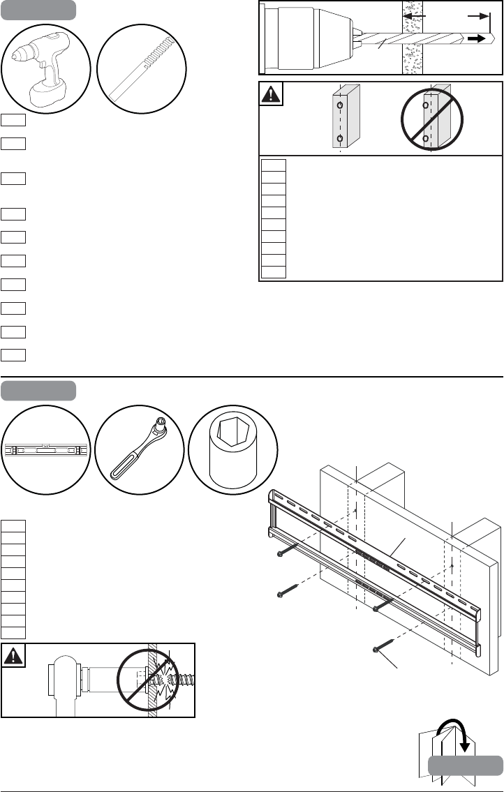
Mounting hole must center on stud.
El orifi cio debe quedar centrado en el montante.
Le trou doit être centré sur le montant.
Das Loch muss am Ständer zentriert sein.
Boorgat moet midden op de balk liggen.
Il foro trapanato deve centrarsi sul montante.
Vyvrtaný otvor musí být v středě stěny.
Vyvŕtaný otvor musí byť v strede steny.
O furo tem de ser perfurado no centro da escora.
Açılan delik direğin tam merkezinde olmalıdır.
ENG
ESP
FRN
DEU
NEL
ITL
ČEŠ
SLK
POR
TÜR
E (4)
A
Drill mounting holes into supporting surface
(2.5" (64mm) minimum depth required).
Taladre los agujeros de montaje en la superfi cie
de apoyo; se requiere una profundidad mínima de
2.5" (64mm).
Percez les trous de fi xation dans la surface
de support, une profondeur minimale de
2,5 po (64mm) est requise.
Bohren Sie Montagelöcher in die Montagefl äche;
Mindesttiefe von 64mm (2,5 Zoll) erforderlich.
Boor montagegaten in het ondersteunende
oppervlak met een diepte van ten minste 64mm.
Trapanare I fori di sostegno nella superfi cie di
supporto; profondità minima richiesta 64mm (2.5").
Vyvrtejte montážní otvory do nosné plochy,
minimální požadovaná hloubka je 64mm (2.5").
Navŕtajte montážne otvory do nosnej plochy,
minimálna vyžadovaná hĺbka je 64mm (2.5").
Perfure os furos de montagem na superfície de
apoio, 64mm de profundidade mínima necessária.
Montaj deliklerini destekleyici yüzeye delin,
64mm (2.5 inç) minimum derinlik gereklidir.
ENG
ESP
FRN
DEU
NEL
ITL
ČEŠ
SLK
POR
TÜR
2.5"
(64mm)
5/32"
(4mm)
5/32"
(4mm)
3/8"
(10mm)
2










