Specifications

8
2012-08-31 #:203-9204-1
1a-1
1a-2
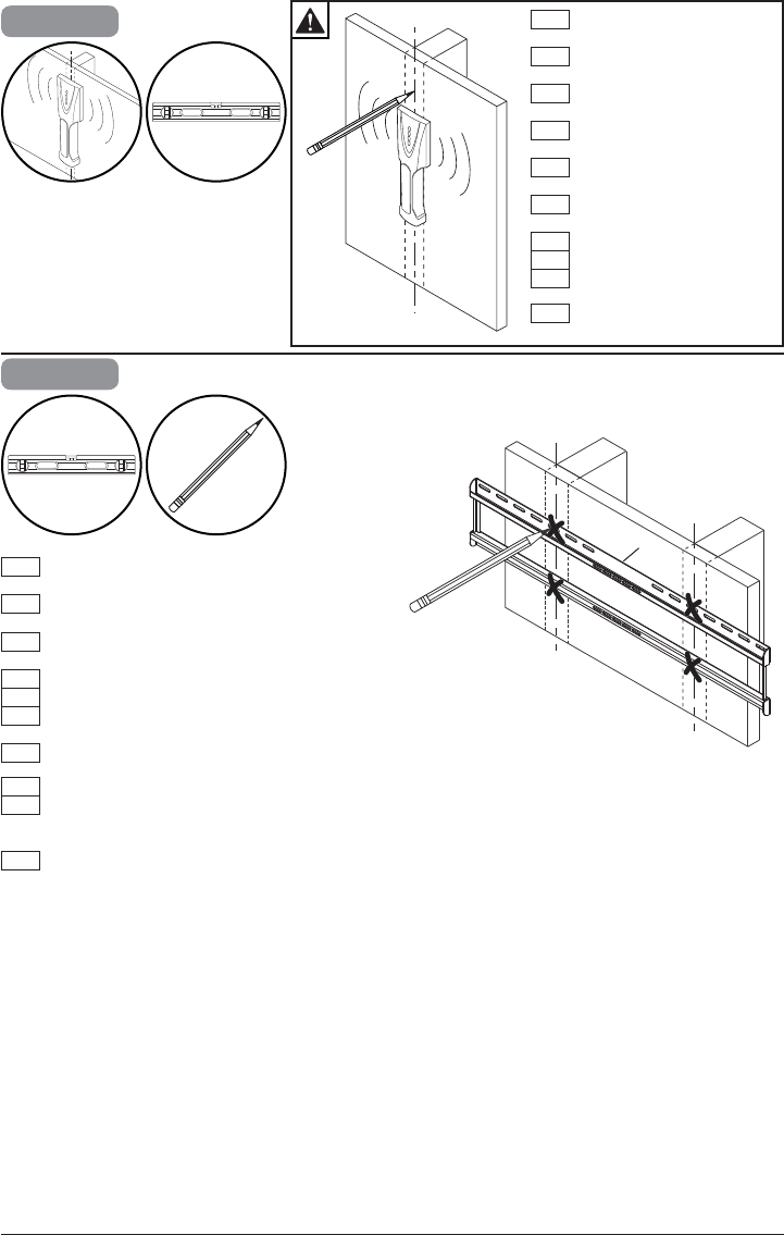
Use stud fi nder to locate and
mark stud center lines.
Marque las líneas centrales
del montante.
Marquez la ligne médiane du
montant.
Markieren Sie die Ständer-
Mittellinien.
Markeer het midden van de
balken.
Contrassegna le linee
centrali dei montanti.
Vyznačte střední linii stěny.
Vyznačte stredné čiary steny.
Marque as linhas centrais da
escora.
Direk merkez hatlarını
işaretleyin.
ENG
ESP
FRN
DEU
NEL
ITL
ČEŠ
SLK
POR
TÜR
Level wallplate. Mark mounting holes on stud
center lines.
Marque los orifi cios de montaje en las líneas
centrales del montante.
Marquez les trous de fi xation le long de la ligne
médiane du montant.
Markieren Sie die Montagelöcher auf den
Ständer-Mittellinien.
Markeer montagegaten op het midden van de
balken.
Contrassegna i fori di montaggio sulle linee
centrali dei montanti.
Na střední linii stěny vyznačte montážní otvory.
Na stredné čiary steny vyznačte montážne otvory.
Marque os furos de montagem nas linhas
centrais da escora.
Direk merkez hatları üzerinde montaj deliklerini
işaretleyin.
ENG
ESP
FRN
DEU
NEL
ITL
ČEŠ
SLK
POR
TÜR
A










