Installation Instruction Manual

ISSUED: 11-14-06 SHEET #: 024-9010-1
Visit the Peerless Web Site at www.peerlessmounts.com For customer care call 1-800-729-0307 or 708-865-8870.
1 of 4
B
Assembly Instructions - External Wall Plate
IMPORTANT! Read entire instruction sheet
before you start installation and assembly.
MAXIMUM LOAD CAPACITY:
200 lb (91 kg)
Models: WSP 716, WSP 716-S,
WSP 716-W, WSP 724, WSP 724-S,
WSP 724-W
WSP 716, WSP 716S, and WSP 716W for studs on 16" (406
mm) centers, contains four cable management ports.
WSP 724, WSP 724S, and WSP 724W for studs on 16", 20"
and 24" (406 mm, 508 mm, 610 mm) centers, contains four
cable management ports.
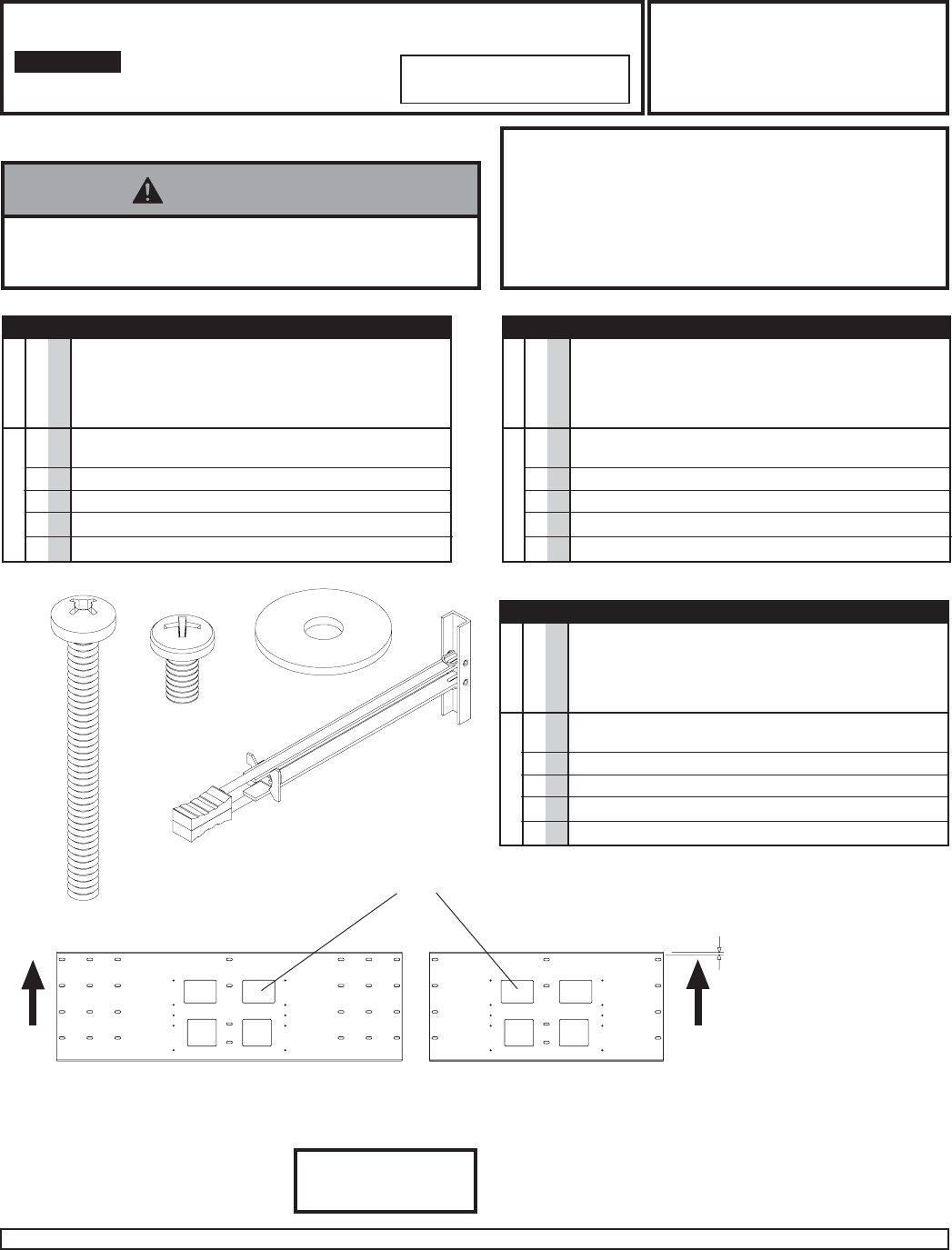
A
Cable Management Ports
C
D
E
THIS
END UP
*Note: The mounting hole which
is closest to the lip of the plate
indicates the up position.
*
Note: Wall plate may
appear slightly different
than illustrated.
• Wall or mounting structure must be capable of sup-
porting a minimum static load of 600 lb (272 kg).
WARNING
9
9
9
9
9
9
9
9
9
9
PARTS LIST
WSP 724
WSP 716
PART # QTY. DESCRIPTION
A 024-1043 1 wall plate 16" centers
024-1042 wall plate 24" centers
B 510-9108 10 1/4-20 x 1/2" phillips screw
C 520-9521 12 1/4-20 x 2 1/2" phillips screw
D 560-9708 12 toggler
E 540-1063 22 washer
MODEL #
9
9
9
9
9
9
9
9
9
9
PARTS LIST
WSP 724S
WSP 716S
PART # QTY. DESCRIPTION
A 024-4043 1 wall plate 16" centers
024-4042 wall plate 24" centers
B 520-9511 10 1/4-20 x 1/2" phillips screw
C 520-9522 12 1/4-20 x 2 1/2" phillips screw
D 560-9708 12 toggler
E 540-2056 22 washer
MODEL #
9
9
9
9
9
9
9
9
9
9
PARTS LIST
WSP 724W
WSP 716W
PART # QTY. DESCRIPTION
A 024-2043 1 wall plate 16" centers
024-2042 wall plate 24" centers
B 520-9511 10 1/4-20 x 1/2" phillips screw
C 520-9522 12 1/4-20 x 2 1/2" phillips screw
D 560-9708 12 toggler
E 540-2056 22 washer
MODEL #
WSP 724
WSP 716
THIS
END UP




