User's Manual

3
59
111
300
48
55
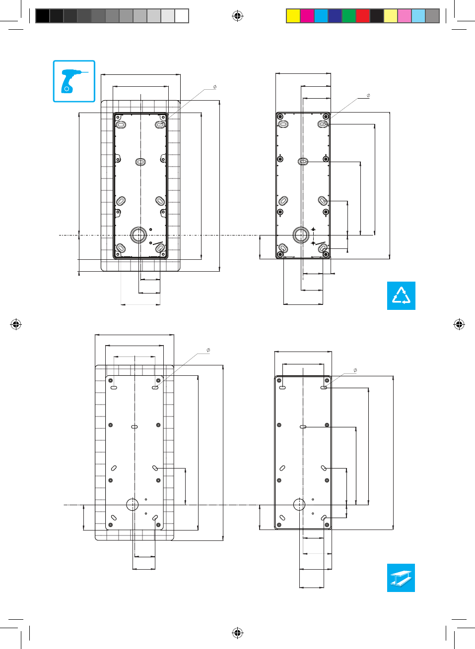
7 x
5.3
7 x
5.3
43.5
39.5
79
26
223
148
69
15.5
150
336
111
296
24
39.5
79
43.5
49 248
115
300
62.2
48
7 x
5.3
7 x
5.3
55
39.5
79
25 70
149
224
46.7
151
336
296
111
48
39.5
43.5
79
70
ABS
337-520337-510337-500
110 mm (4-1/3”)
M5 x 38 mm
337-420337-410337-400
35 mm (2-3/8)
M4 x 16 mm
x 8
x 7
x 7
110 mm (4-1/3”)
M5 x 38 mm
35 mm (2-3/8)
M4 x 16 mm
x 8
x 7
x 7
x 1
x 1
x 1
ABS
x 1
x 1
337-420337-400
337-520337-500
ins-20400.indd 3 23/06/2015 11:30:59