User's Manual
Table Of Contents

Configuration Scenarios
D-73610-A2-GB41-60 March 1999
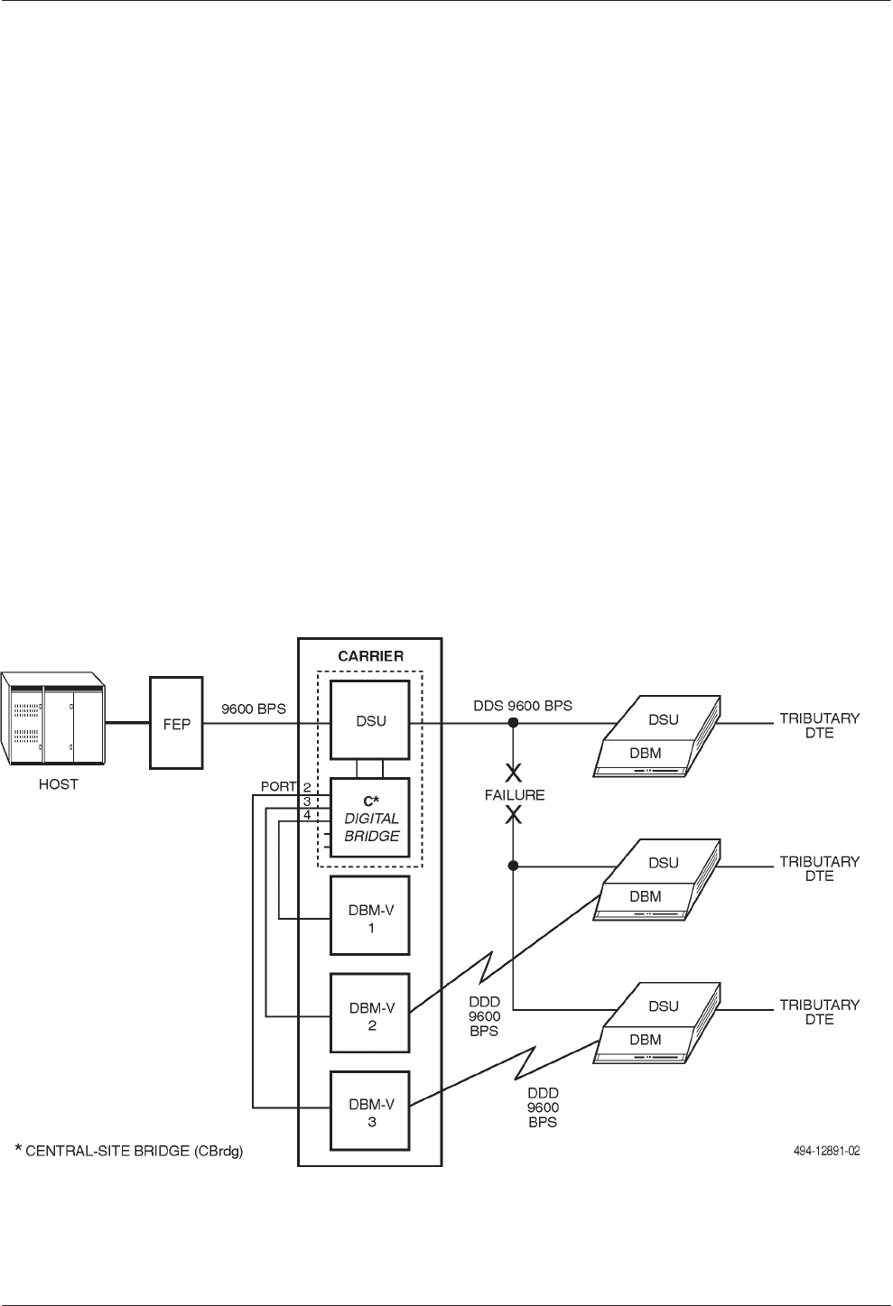
When 1 minute elapses, the two tributary DSUs
(Figure D-4) instruct their DBMs to place a call to their
respective DBM-Vs at the central site. (Each tributary
DSU-DBM has been paired with a DBM-V that is
associated with the control DSU-digital bridge at the
central site. The tributary’s Backup Dir configuration
option is a pointer to the telephone number stored in its
Backup Directory for its associated DBM-V; each DBM
calls a different DBM-V.) After the pairs of DBMs
exchange passwords, the tributary DSU-DBMs enter Data
mode (ready to send data).
After the tributary DSU-DBM has set up the call, each
of the affected DSUs switches the DTE’s data to its DBM.
As each associated DBM-V enters Data mode, the data is
passed from the DBM-V to the digital bridge. The digital
bridge’s timing is still provided by the DDS network, and
elastic stores in the digital bridge buffer any timing
differences between the DBMs and the DDS network.
After all calls have been completed, full restoration is
accomplished at 9600 bps.
It is not likely that backup can be accomplished before
the network has timed out and the affected tributaries have
been taken off the host’s active list. However, if they are
placed on an FEP’s slow poll list, they will be placed back
on the active list as soon as backup has been completed;
they can then respond to polls once again. If dropped from
the poll list completely, you will have to place the remote
DTEs back onto the FEP’s poll list.
During the backup session, each pair of communicating
DBMs (the DBM-V and its tributary DBM) and the DDS
network are active on the bridge. When the DDS network
is restored, each tributary DSU drops its network alarm.
After the 5-minute restoration interval has elapsed, the
DSU switches back to the DDS network, and the remote
DTE then receives polls from the host over the DDS
network. Remote DTE responses are also sent back over
the DDS network.
As each tributary disconnects its DBM, its DBM-V
switches out of Data mode, becoming inactive on the
bridge. Thus, restoration to the DDS network is automatic
and generally nondisruptive. (Disruptions should only
occur if the control and tributary are communicating when
the switch occurs.)
Figure D-4. Digital Bridge Configuration: Automatic Partial Backup – Dial Backup Active










