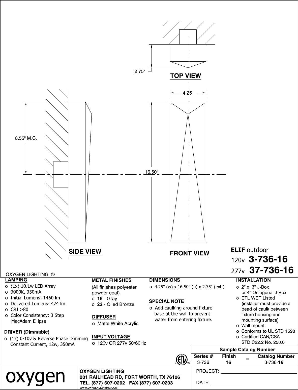
275" ‘ ’ TOP VIEW | e 18.50" SIDE VIEW ELF outdoor \ SIDE VIEW FRONT VIEW 120v 3= OXYGEN LIGHTING © 277v 37-736-16 LAMING METAL FINISHES DIMENSIONS INSTALLATION (1x) 10.1w LED Array {All finishes polyester 0 4.25" (W) x 16.50" (h) x 2.75" (ext.