Owner manual

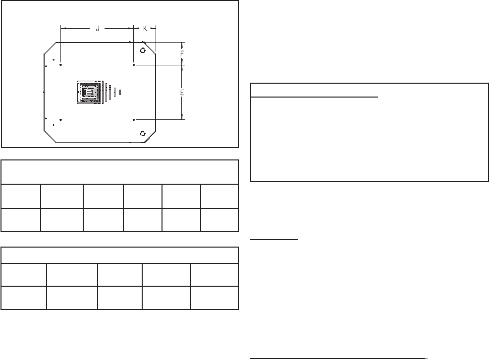
Figure 4 - Threaded Rod Spacing Dimensions
Vertical Air Discharge
Table 4 - Threaded Rod Spacing Dimensions
Vertical Air Discharge
Heater
kW
Threaded
Rod
EFJK
10.1 to
20.0 kW
3/8 - 16
12 in.
305 mm
5 in.
127 mm
16 in.
406 mm
4 3/4 in.
121 mm
Table 5 - Dimensions and Weight
Heater
kW
Height Width Depth Weight
10.1 to
20.0 kW
24 1/2 in.
622 mm
22 in.
559 mm
16 1/4 in.
413 mm
90 lb
41 kg
WIRING
All wiring must be in accordance with National and Local
Electrical Codes.
The heater must be grounded as a precaution against
possible shock.
Insure power source is deenergized before wiring heater.
Check nameplate on back of heater.
Connect heater only to voltage and phase specifi ed on
nameplate.
Two knockouts are provided in the back of the heater.
For supply power wiring a multiple 1 3/8 in. to 1 3/4 in.
(35 mm to 44 mm) knockout is provided.
For control wiring a 1/2 in. (13 mm) knockout is provided.
Field wiring must be properly sized to carry the amperage
of the heater and all accessories.
Relay with Transformer (RT) – Low voltage thermostat
wiring.
RT is located on back wall of heater control compartment.
- Remove wiring separator.
- Remove knockout from heater back.
- Wire remote thermostat to RT.
- Replace wiring separator and tighten pipe nipple nut.
Wiring compartment volume: 85 in
3
(1393 cm
3
) minimum.
HEATER OPERATION
Fan Delay
On a call for heat from either the remote (fl oor level)
thermostat or the unit mounted thermostat the elements
will be energized.
When the thermostat is satisfi ed the elements will
be deenergized.
The fan will continue to run until the residual heat is
removed from the heater. Then the fan will stop.
Automatic Reset Thermal High Limit
OHV heaters have an automatic reset thermal high limit
that will deenergize the heating elements if the interior
temperatures of heater exceed its setting. The limit will
automatically reset when the heater interior temperatures
fall below its setting.
SERVICE
The heater motor is permanently lubricated.
Occasional cleaning of the inlet grille will prevent
clogging. Use a vacuum with a brush attachment.
WARRANTY
OUELLET CANADA INC. warrants the electric heating
element of the OHV series for a fi ve (5) year period; and
their component parts against defects in material and
workmanship for a fi ve (5) year period following the date
of purchase, under normal use and service, when proof
of purchase of such is provided to the manufacturer. The
obligation of Ouellet Canada Inc., under the terms of
this warranty, will be to supply a new unit and this omits
the manufacturer to bear the installation costs or other
secondary charges linked to replacing the unit or the
component part(s).
KEEP THIS INSTRUCTION PAMPHLET
FOR THE USER INS238-201001-05
WIRING
(continued)
The heater has a wiring diagram affi xed to the inside of
the control compartment access door. Check this diagram
before making any electrical connections.
Branch circuit wiring must be minimum 600 Volt, 60 °C.