Datasheet

M-52 Strumenti di misura digitali K3MA-L
■ Parametri
−
−
−
−−
0
Compensazione ingresso
temperatura
Per modelli con funzione
di uscita comparativa
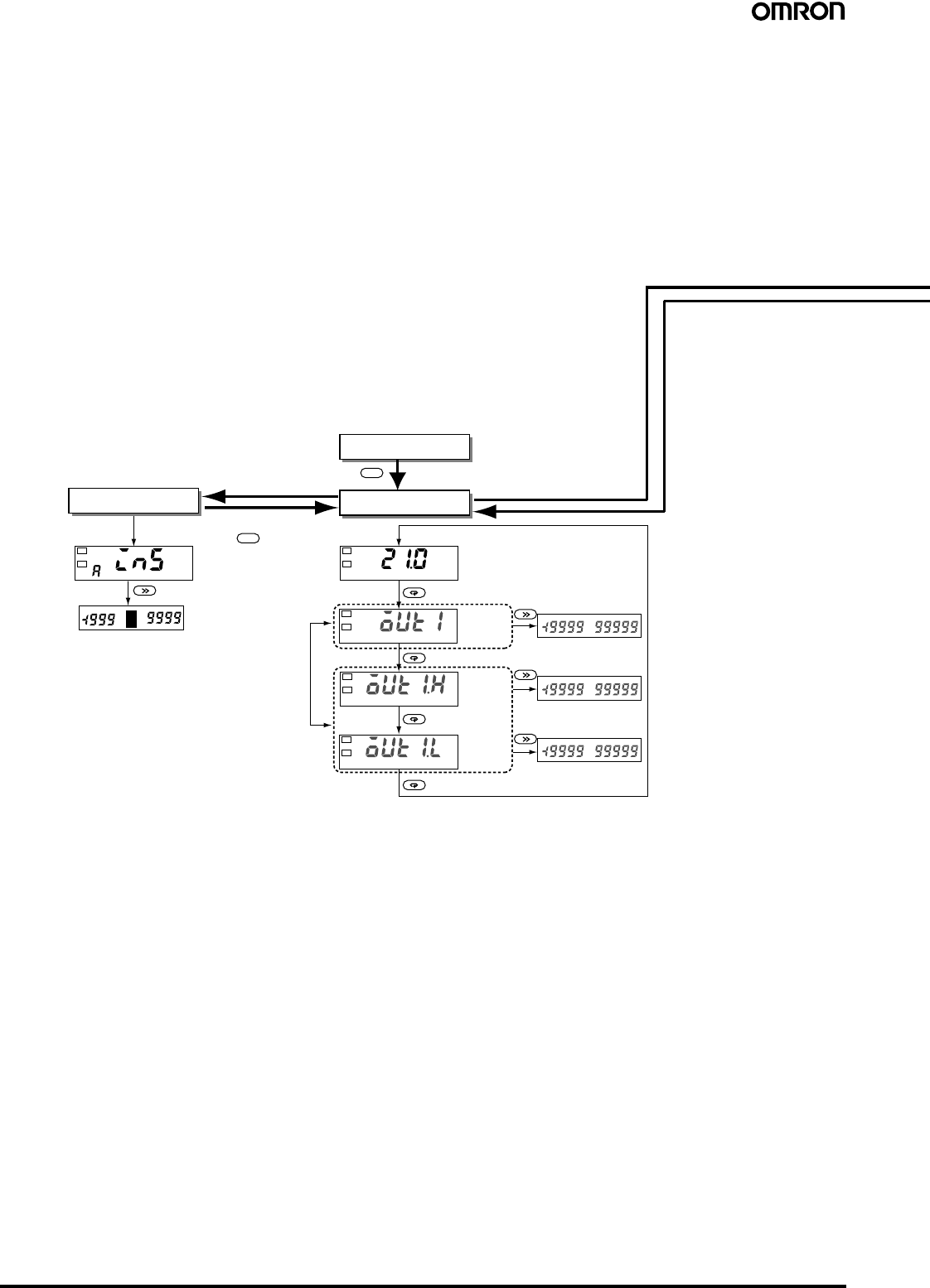
MODO
MODO
MODO
MODO
Impostare uno di
questi parametri
Valore attuale
Valore
OUT1
Valore limite
superiore
OUT1
Valore limite
inferiore
OUT1
Nota: 1. In alcuni modelli non sono visualizzati alcuni parametri.
2. Lo strumento K3MA-L blocca la misurazione se si accede al di impostazione iniziale
o al livello di impostazione delle funzioni avanzate.
3. Se viene cambiato il campo di ingresso, alcuni parametri tornano automaticamente
al valore predefinito in fabbrica. Si consiglia quindi di impostare il campo di funziona
mento degli ingressi per primo.
4. Le impostazioni predefinite in fabbrica sono in neretto.
Accensione ON
Livello di funzionamento
Livello regolazione
Premere il tasto di livello
per meno di 1 s.
Premere il tasto di
livello per meno
di 1 s.
Y202-IT2-02.book Seite 52 Donnerstag, 28. April 2005 10:00 10










