Datasheet

A-79E3T
E3T
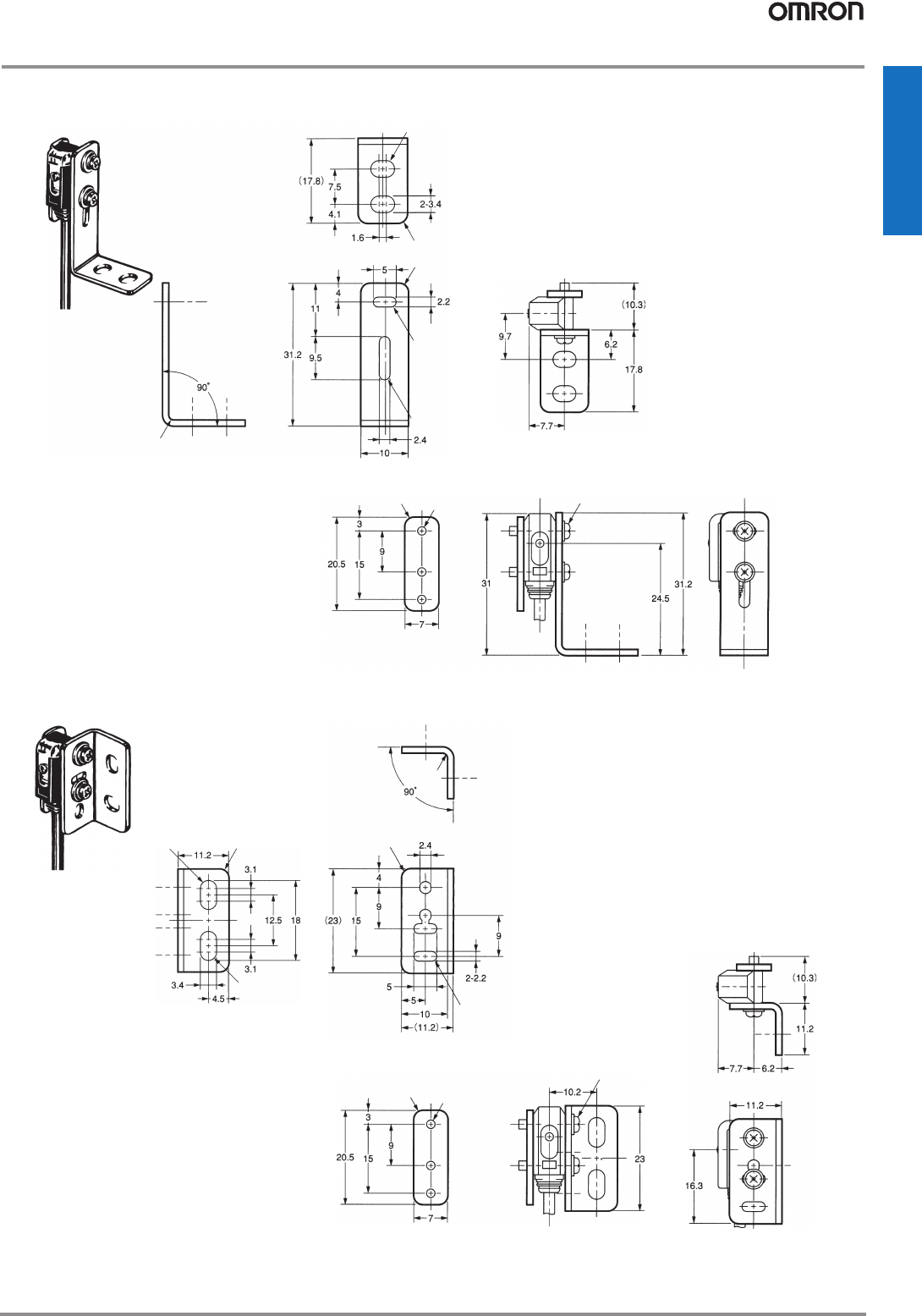
Befestigungswinkel für E3T-S@ (gesondert zu bestellen)
E39-L116
E39-L117
max. R1,5
Material: 1,2-mm-Edelstahl (SUS304)
E3T-ST11 mit E39-L116
(2 x R1,7)
(2 x R2)
(2 x R2)
(2 x R1,1)
(2 x R1,2)
(4 x R2)
3 x M2
2 Stck., M2 x 14
max. R1
Material: 1,2-mm-Edelstahl (SUS304)
E3T-ST11 mit E39-L117
(2 x R1,7)
2 x R2
(2 x R2)
(2 x R1,1)
(4 x R2)
3 x M2
2 Stck., M2 x 14
(2 x R1,7)
F502-DE2-04+SEN_SAF+Cat.book Seite 79  Montag, 4. September 2006 4:05 16










